Аренда офиса на улице Загородное шоссе, 508 м2
Аренда в месяц:
1 058 333 ₽
Цена м2/год:
24 996 ₽
г Москва, Загородное шоссе, д 1
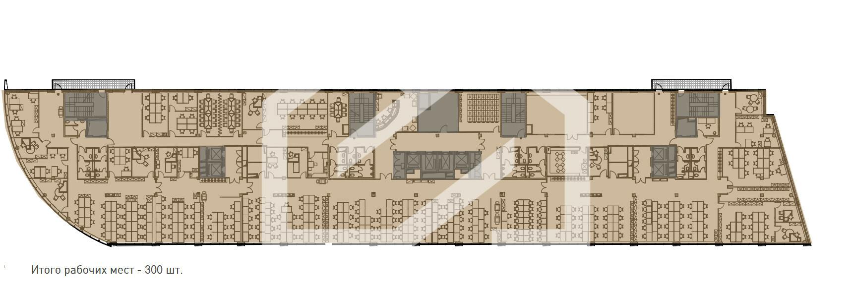
Офисное помещение в бизнес-центре класса В+ «Северное Сияние». Первая линия ул. Правды. 5 минут пешком от станции метро Савеловская. Удобный заезд со стороны ТТК и Ленинградского проспекта. Сложившееся деловое окружение. Развитая инфраструктура внутри здания: столовая, кафе, мини-маркет, банкоматы. 8 и 9 этаж 14-этажного здания. 290 рабочих мест. Смешанная планировка. Офисная отделка. Панорамное остекление. Центральная система приточно-вытяжной вентиляции, центральное отопление, климатические системы, спринклерная система пожаротушения, системы контроля доступа и видеонаблюдения. 9 грузопассажирских лифтов OTIS. Подземный двухуровневый паркинг и наземная охраняемая стоянка. Год постройки здания: 2006 г. В 2017 г. проведена реновация. Высота потолков: 3.5 м. Освобождение в декабре 2025 г.

