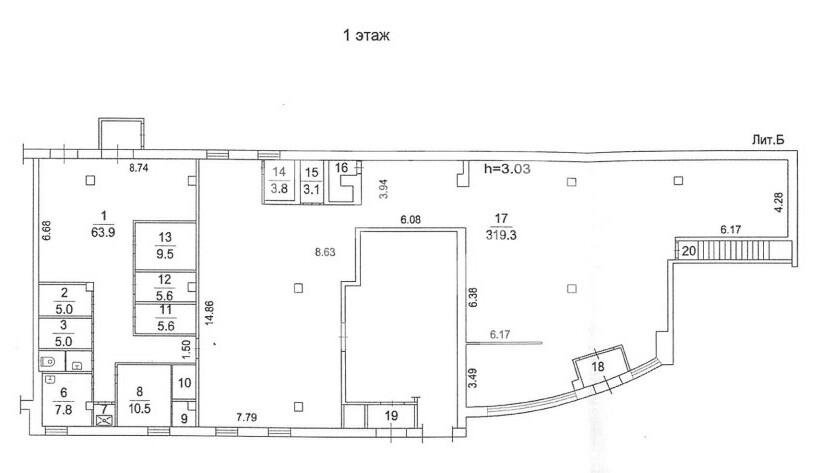
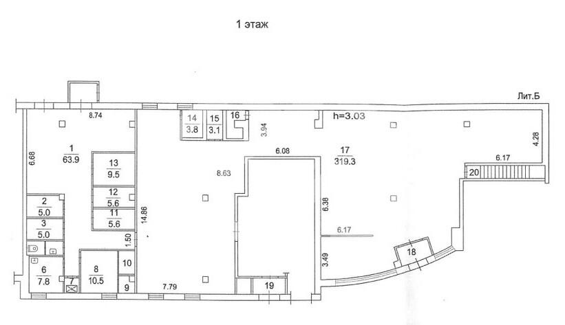
Аренда торговой площади на улице Варшавское шоссе, 238,6 м2
Аренда в месяц:
600 000 ₽
Цена м2/год:
30 168 ₽
г Москва, Варшавское шоссе, д 2
Торговая площадь формата Street Retail в г. Видное. Плотный живой массив. Сложившееся торговое окружение. Развитая инфраструктура. Интенсивный пешеходный и автомобильный трафик. 1 этаж бизнес-центра "Капитал Плаза". Отдельный вход с фасада. Смешанная планировка. Витринное остекление. Возможность размещения вывески. Зона погрузки/разгрузки. Наземная парковка на улице.

