ID: 932097
Ссылка скопирована!
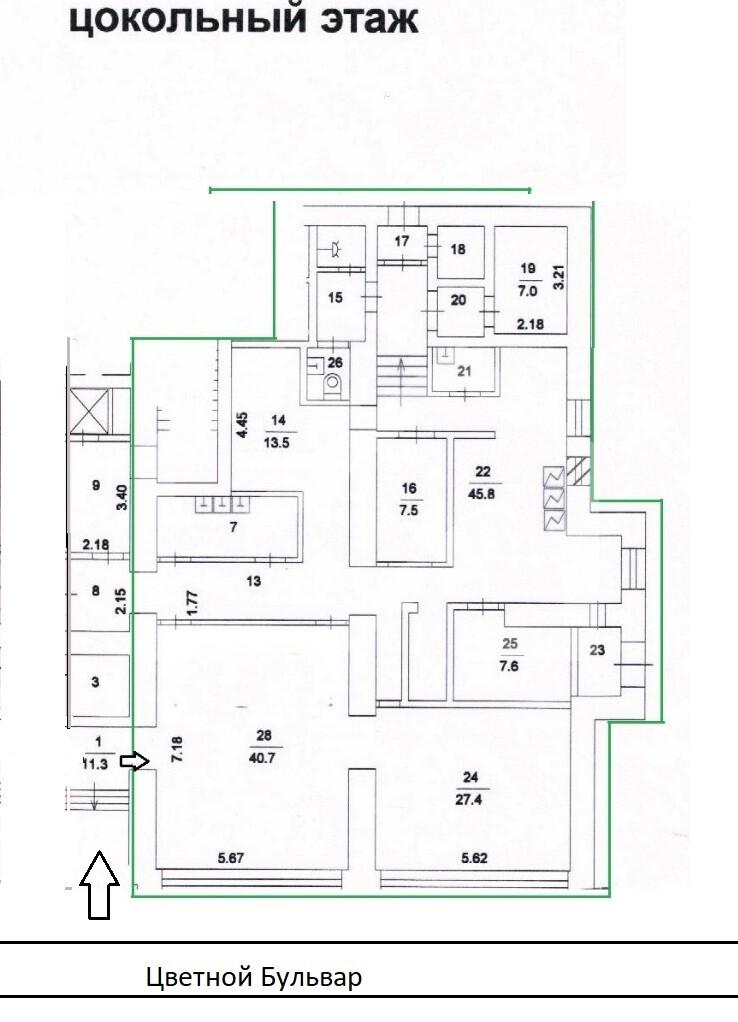
Аренда помещения свободного назначения у метро Цветной бульвар, 205 м2
ID: 932097
г Москва, Цветной б-р, д 20/1
Цветной бульвар
4 мин.
Арендная плата (УСН):1 600 000 ₽/ в мес
Ссылка скопирована!
Арендная ставка:7 804 ₽/м² в мес
Площадь: 205 м²
г Москва, Цветной б-р, д 20/1
Цветной бульвар
4 мин.
Описание
Характеристики объекта
Описание
Торговое помещение формата торговое помещение в ЦАО. Первая линия Цветного бульвара. 5 минут пешком от станций метро Цветной бульвар и Трубная. Крупный деловой центр. Густонаселённый жилой массив. Сложившееся торговое и деловое окружение. Сверхинтенсивный автомобильный и пешеходный трафик. 1 этаж 8-этажного жилого дома. Отдельный вход с фасада. Зальная планировка. Витринное остекление. Зона разгрузки/погрузки. Вытяжка под общепит, выведена на крышу дома. Вывеска на фасаде. Рядом пешеходный переход и автобусная остановка. Электрическая мощность: 80 кВт. Высота потолков: от 3 до 3.1 м.
Расположение
г Москва, Цветной б-р, д 20/1
Цветной бульвар
4 мин.
Похожие объекты


















