Аренда офиса на улице Загородное шоссе, 508 м2
Аренда в месяц:
1 058 333 ₽
Цена м2/год:
24 996 ₽
г Москва, Загородное шоссе, д 1
"Химки Бизнес Парк» — современный офисный комплекс класса B+, расположенный в транспортной доступности от МКАД и международного аэропорта Шереметьево. Бесплатные автобусы от м. «Речной вокзал» Удобное расположение, высокий уровень сервиса, развитая инфраструктура, экологичность.
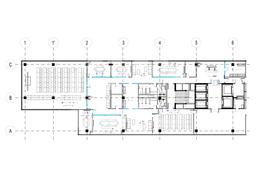
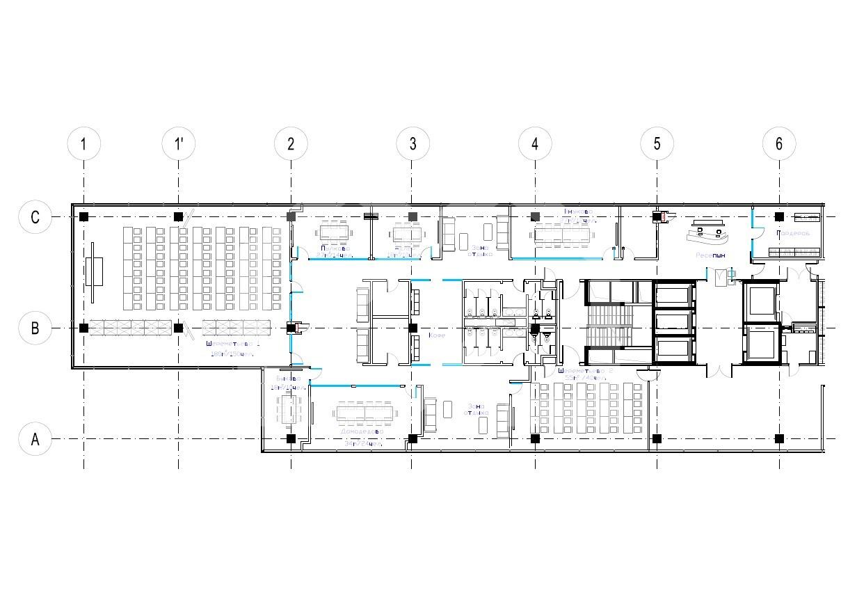
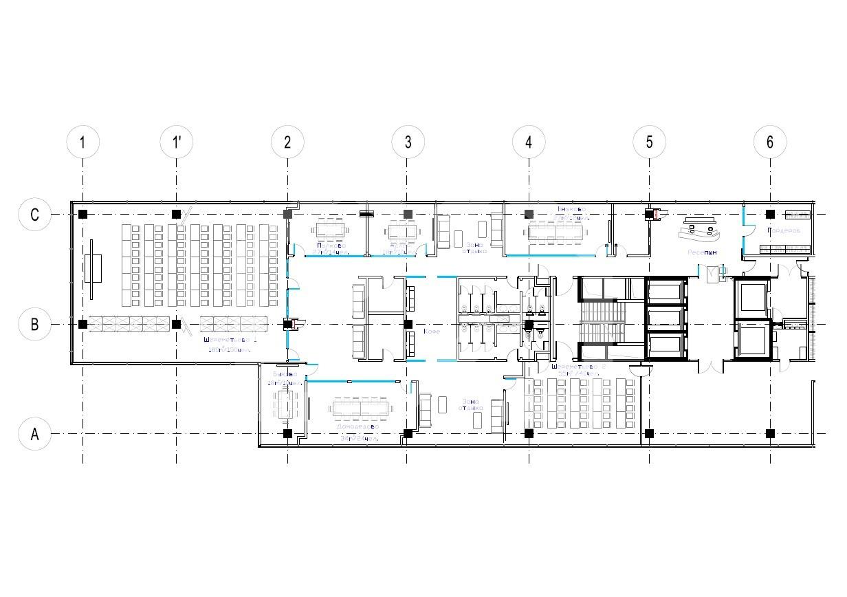
Офис на 14-ом этаже 15-этажного здания. Общая площадь: 748.2 кв.м. Приточно-вытяжная вентиляция, центральное кондиционирование, система видеонаблюдения и контроля доступа. Наличие собственных санузлов и кухни в блоке. Наземный и подземный паркинг.

