Продажа торговой площади на улице Лодочная, 50,4 м2
Цена:
28 440 720 ₽
Цена м2:
564 300 ₽
г Москва, ул Лодочная, д 27 к 2
Продажа помещения свободного назначения в ЦАО площадью 754,6 кв.м. на первой линии Саввинской набережной. 3 мин на транспорте до станции метро "Киевская". Высокий пешеходный и автомобильный трафик. 1 этаж. Витринные окна. Открытая планировка. Типовой ремонт. Высота потолков: 4 м. 2 входа с фасада здания, 2 входа со двора.
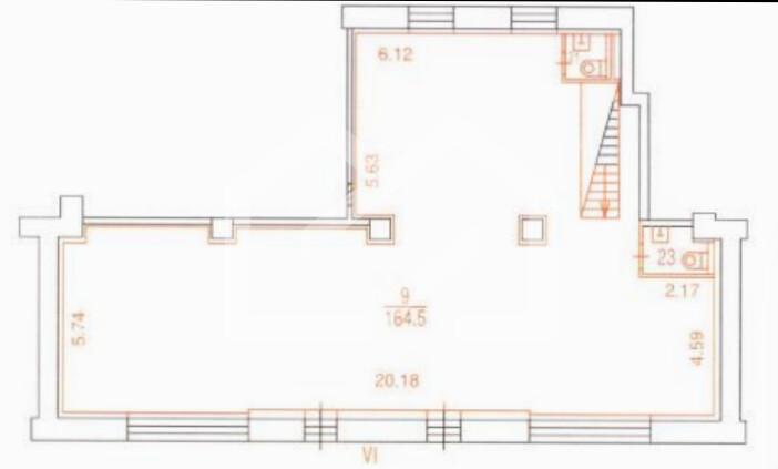
Помещение 1 - 1 этаж, 101 кв.м
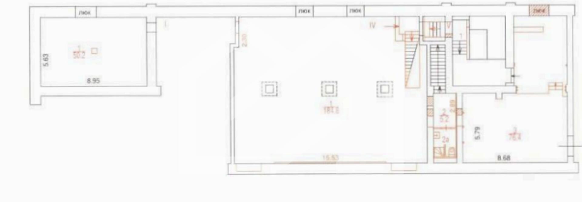
Помещение 2 - 1 этаж, площадь 169 кв.м, подвал 324 кв.м, высота потолка 2,5 метра (можно 3,10 метра)

