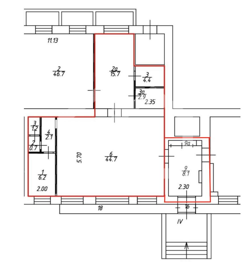
Продажа готового бизнеса в ЖК Клубный город на реке Primavera, 56,1 м2
Цена:
60 000 000 ₽
Цена м2:
1 069 518 ₽
г Москва, Покровская наб, д 16
Помещение свободного назначения формата Street Retail с надёжным сетевым арендатором Красное белое!
Помещение расположено в плотном жилом массиве. 200 метров до МЦК Верхние Котлы. Помещение на первом этаже 8-этажного жилого дома. Сложившееся торговое окружение. Выделенная электрическая мощность: 15кВт. В 15-минутах от помещение Апарт-комплекс бизнес-класса "Новоданиловская 8".
Арендатор:
Красное&белое
МАП: 250.000р
ГАП: 3.000.000р
Окупаемость: 10 лет.

