Продажа здания на улице Грайвороновский 2-й проезд, 187 м2
Цена:
57 165 000 ₽
Цена м2:
305 695 ₽
г Москва, проезд Грайвороновский 2-й, д 38 стр 4
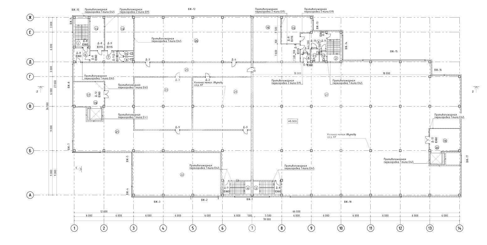
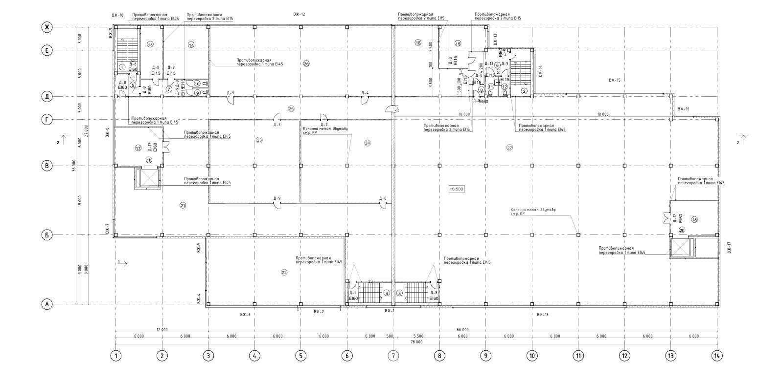
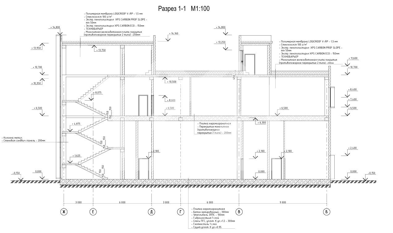
Отдельно стоящее здание на пересечении ул. Алабушевская и пр-та Генерала Алексеева, гор. Зеленоград. Напротив крупный промышленный массив. Сложившееся окружение. Интенсивный автомобильный трафик. 1, 2 этаж. Открытая планировка.. Здание прямоугольное с размерами в осях 36,0м х 78,0 м. За уровень пола 1-го этажа принята отметка 0,000. Высота до низа несущих конструкций 1-го этажа – 6 м; 2-го этажа – 4,0 м. Кровля – плоская, с переменным уклоном 0,9 градуса. Предусмотрено два входа с торцов здания, вход в осях 1/Б-В и 14/В-Г оборудован пандусом для обеспечения доступа маломобильных групп населения на первый этаж в зону магазинов. Отопление планируется пеллетное, но есть ТУ на Центральное отопление. Форма и вид здания, а также отделка фасадов корректируются согласно пожеланиям заказчика и обеспечивают комфортную рабочую среду и функционирование объекта капитального строительства. ВРИ торговля/придорожный сервис.
Технические характеристики:
Общая площадь здания: 4 914,83 кв.м.
Площадь 1-го этажа: 2 493,76 кв. м.
Площадь 2-го этажа: 2421,07 кв. м.
Высота потолка: 6 метров на первом этаже и 4 на втором.
Планируемое начало строительство - апрель. При быстром выходе на сделку, планируемое завершение - декабрь.

