Продажа готового бизнеса в ЖК Клубный город на реке Primavera, 56,1 м2
Цена:
60 000 000 ₽
Цена м2:
1 069 518 ₽
г Москва, Покровская наб, д 16
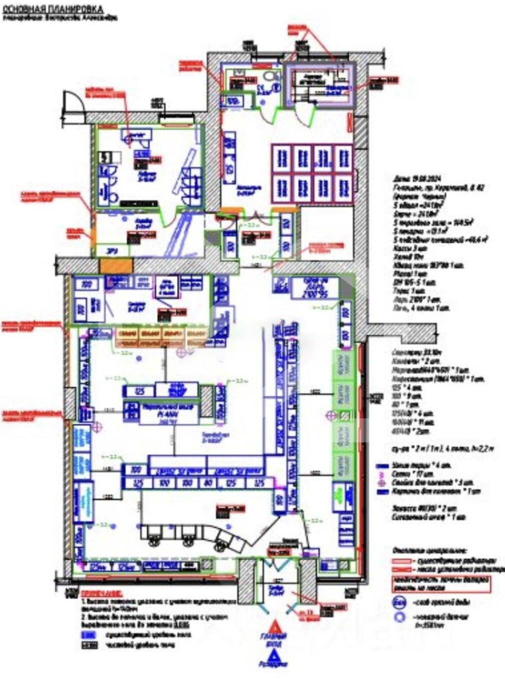
Помещение свободного назначения формата Street Retail с сетевым арендатором в Голицыно. 20 минут на автомобиле от станции МЦД-4 Лесной Городок. Густонаселённый жилой массив. Стабильный автомобильный и пешеходный трафик. 1 этаж 9-этажного жилого дома. Отдельный вход с фасада. Открытая планировка. Витринное остекление. Парковка перед фасадом. Арендатор: супермаркет Ярче!, ДДА. МАП: 340 000 руб. Окупаемость: 9,8 лет.

