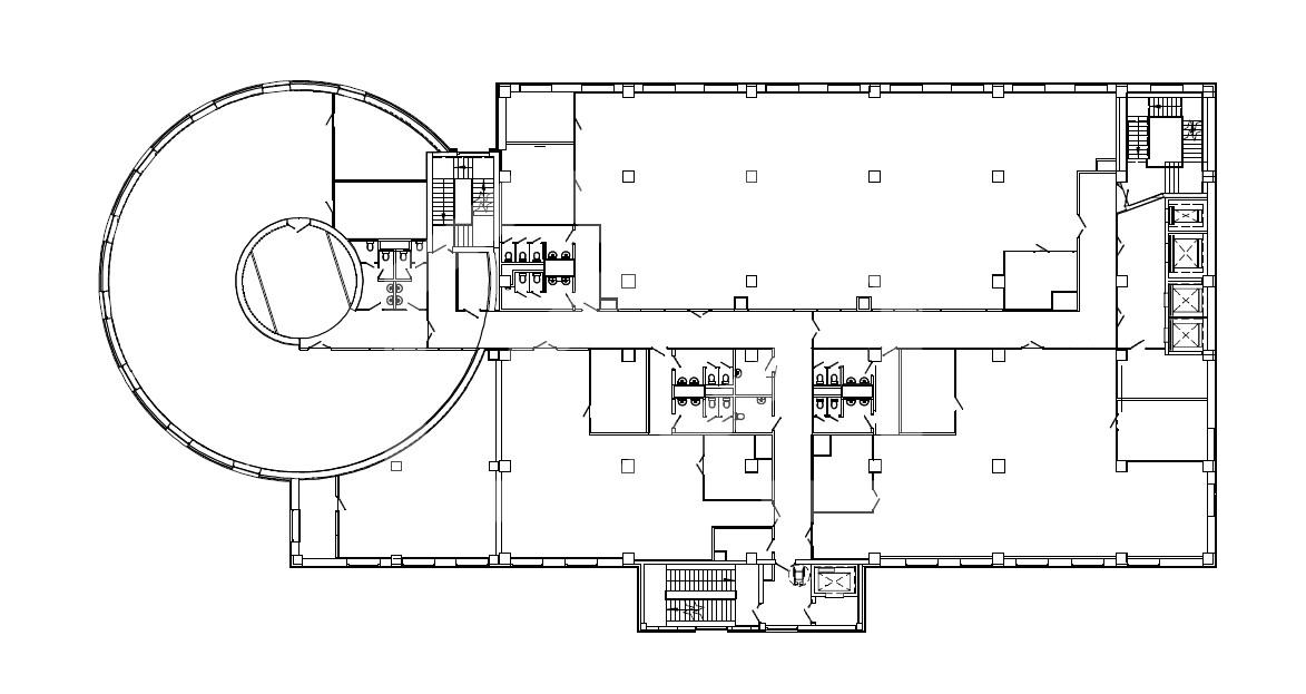
Аренда офиса на улице 1-й Волоколамский, 1 636 м2
Аренда в месяц:
4 324 494 ₽
Цена м²/год:
31 716 ₽
г Москва, 1-й Волоколамский проезд, д 10 стр 1
Бизнес-центр находится по адресу: ул. Новохохловская, д. 29, в пяти минутах пешком от наземной станции метро «Новохохловская» Московского центрального кольца. От метро «Волгоградский проспект» можно добраться за 15 мин. на общественном транспорте. Главное удобство для автомобилистов – прямой выезд на ТТК и близость Рязанского и Волгоградского проспектов. Офис находится на 5 этаже, площадь- 1996 кв. м. Высота потолков- 4 м. Современная отделка в стиле лофт. Приточно-вытяжная вентиляция и центральное кондиционирование. Светодиодное освещение. Перегородки (двойное стекло). В зданиях приточно-вытяжная вентиляция и сплит-системы, пожарная сигнализация и система пожаротушения, круглосуточная охрана с видеонаблюдением и контролем доступа. Предусмотрен наземный паркинг. Ввод в эксплуатацию - 3 квартал 2026г.
