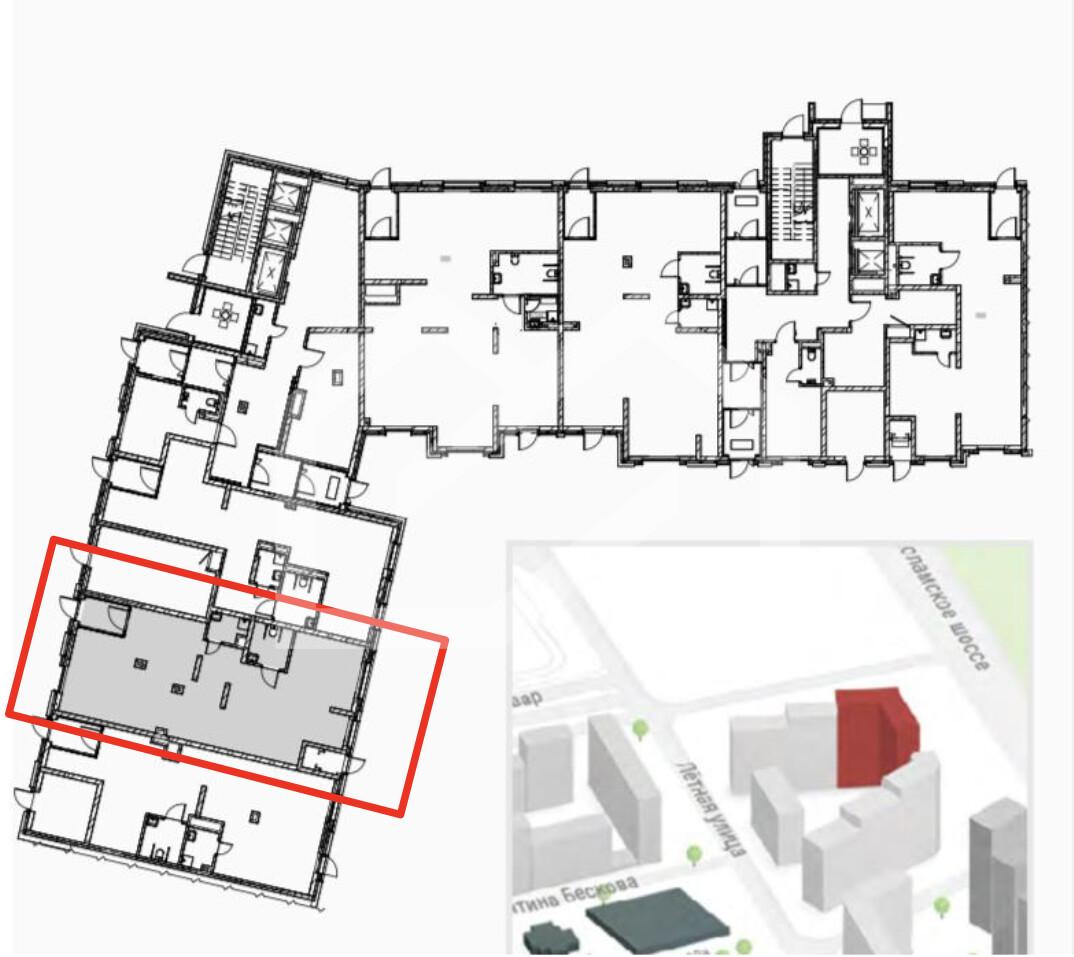
Аренда торговой площади на улице Варшавское шоссе, 238,6 м2
Аренда в месяц:
600 000 ₽
Цена м2/год:
30 168 ₽
г Москва, Варшавское шоссе, д 2
Помещение свободного назначения формата Street Retail на первой линии Волоколамского шоссе. 3 минуты пешком от станции метро Тушинская. Центр плотного жилого массива. Рядом ЖК бизнес-класса, отделения банков, магазины, аптеки. Сверхинтенсивный автомобильный и пешеходный трафик. 1 этаж 24-этажного жилого дома. Отдельный вход с фасада. Витринное остекление. Электрическая мощность: 20.2 кВт. Высота потолков: 4.05 м.

