Аренда склада в г. Химки, 8 250 м2
Аренда в месяц:
9 625 000 ₽
Цена м2/год:
13 992 ₽
Московская обл, г Химки, деревня Перепечино, стр 1Б/1
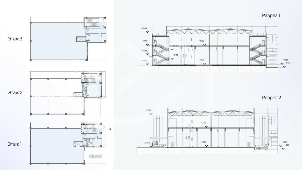
Складской комплекс формата LIGHT INDUSTRIAL в индустриальном парке "Южный", между трассами М-2 и М-4 вблизи деревни Бяконтово. Так как корректный адрес отсутствует на Яндекс.Картах, введен ближайший. Удобный заезд с Варшавского и Симферопольского шоссе (сдается в 2026 г.). Объект расположен между главными подмосковными кольцевыми дорогами МКАД и ЦКАД, 25 км от аэропорта Домодедово и 40 км от Внуково. Один из самых крупных транспортных хабов региона. Готовность объекта - 4 квартал 2025 года. Формат блоков: 80% - универсальное складское пространство в 2 этажа, 20% - офисно-торговый блок: трехуровневый с готовой отделкой. Погрузочные зоны в каждом блоке на уровне 1.2 м или 0 м от земли. Каждый блок оборудован грузовым подъемником 2т. Закрытая территория. Парковка перед зданием.
Технические характеристики:
Площадь 1 блока: 540 кв.м. из которых 430 м2 - склад (1 и 2 этажи по 215 м2), 110 м2 - АБК в 3 этажа.
Шаг колонн: 12х18.
Высота потолка: 1 этаж - 8 м, 2 этаж - 5 м.
Нагрузка на пол: 1 этаж - 5т/м². 2 этаж - 2т/м².
Система пожаротушения - спринклерная. Контроль въезда и охрана.
Отопление здания от собственной газовой котельной (444 м3/час).
Все блоки можно объединять!

