ID: 908694
Ссылка скопирована!
Аренда помещения свободного назначения у метро Юго-Восточная, 193,3 м2
ID: 908694
г Москва, ул Ташкентская, д 18 к 1
Юго-Восточная
6 мин.
Арендная плата :600 000 ₽/ в мес
Ссылка скопирована!
Арендная ставка:3 103 ₽/м² в мес
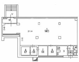
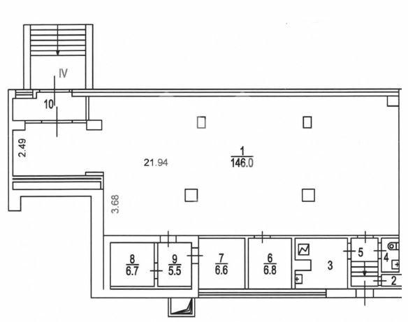
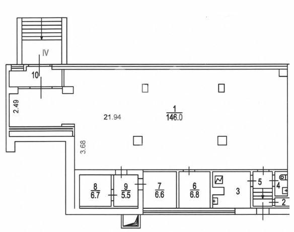
Площадь: 193,3 м²
г Москва, ул Ташкентская, д 18 к 1
Юго-Восточная
6 мин.
Описание
Характеристики объекта
Описание
Помещение свободного назначения на первой линии. Плотный жилой массив. Рядом две школы и колледж. Менее 6 минут от станции метро "Юго-Восточная". Помещение расположено на первом этаже 9-этажного жилого дома. Открытая планировка, отдельный вход со стороны улицы и двора. Витринное остекление, место для вывески.
Расположение
г Москва, ул Ташкентская, д 18 к 1
Юго-Восточная
6 мин.
Похожие объекты










