ID: 908687
Ссылка скопирована!
Аренда помещения свободного назначения у метро Вавиловская, 301,7 м2
ID: 908687
г Москва, Ленинский пр-кт, д 87
Вавиловская
8 мин.
Арендная плата :600 000 ₽/ в мес
Ссылка скопирована!
Арендная ставка:1 988 ₽/м² в мес
Площадь: 301,7 м²
г Москва, Ленинский пр-кт, д 87
Вавиловская
8 мин.
Описание
Характеристики объекта
Описание
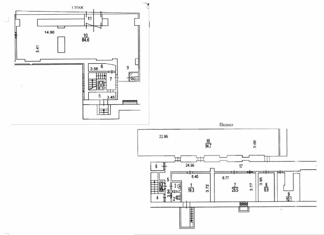
Помещение свободного назначения на первой линии Ленинского проспекта. 8 минут пешком от станции метро Вавиловская. Плотный жилой массив. В соседних помещениях расположены якорные арендаторы: Магнит, ВкусВилл, несколько аптек. Интенсивный пешеходный и автомобильный трафик. 1 этаж (100 кв. м.) и подвал (201,7 кв. м.) 8-этажного жилого дома. Отдельные входные группы со стороны улицы и со двора. Смешанная планировка с торговым залом, офисной частью и подвалом. Витринное остекление. Зона погрузки/разгрузки. Парковка на улице. Рядом остановка общественного транспорта. Электрическая мощность: 50 кВт. Высота потолков: 4.75 м.
Расположение
г Москва, Ленинский пр-кт, д 87
Вавиловская
8 мин.
Похожие объекты


















