Аренда склада в г. Химки, 8 250 м2
Аренда в месяц:
9 625 000 ₽
Цена м2/год:
13 992 ₽
Московская обл, г Химки, деревня Перепечино, стр 1Б/1
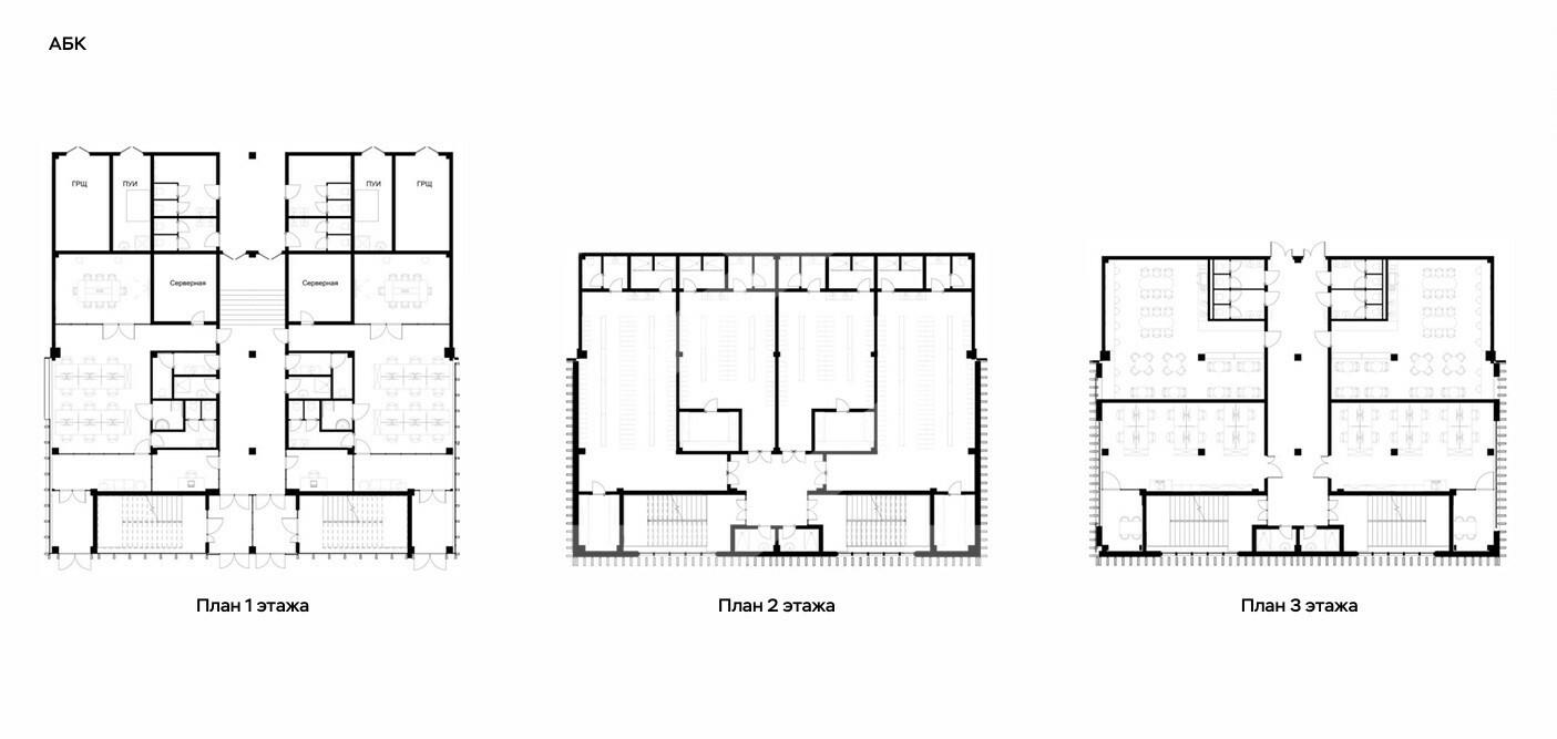
Складской комплекс класса "А" в логистическом парке "Шишкин лес" на первой линии ЦКАД. Так как корректный адрес отсутствует на Яндекс.Картах, введен ближайший. Развитая транспортная инфраструктура: 500 м до А-107 и ЦКАД, 8 км до Калужского шоссе, 14 км до Киевского, 37 км до МКАД. 1, 2, 3 этаж. Открытая планировка. Антипылевое покрытие пола. Встроенные АБК. Оборудован пожарной сигнализацией и спринклерной системой пожаротушения. Автоматические доковые ворота Hörmann на уровне 1.1 метра c герметизаторами и уравнительными платформами. Один док на каждые 426 м². Кросс-док. Эксплуатируемая кровля для реализации инфраструктурных решений арендаторов. Комфортабельное общежитие для персонала, зеленая зона для отдыха, спортивные площадки: воркаут, баскетбол, настольный теннис. Огороженная охраняемая территория с СКД, КПП, видеонаблюдением. Клининг зон общего пользования. Техническое обслуживание внешних инженерных сетей и эксплуатация объекта, сервис 24/7. Большая парковка для легковых и грузовых автомобилей. Профессиональная управляющая компания.
Технические характеристики коруса №3:
Площадь блока: 32199 м2
Складская площадь: 22310 м2, АБК: 3165 м2, мезонин: 6734 м2
Шаг колонн: 12х24 м
Нагрузка на пол: 6 т/м²
Рабочая высота потолка: 12 м
Рабочая высота мезонина: 5,6 м
Выделенная мощность: 300 кВт
Готовность - июнь 2025г
Срок аренды - от 5 лет

