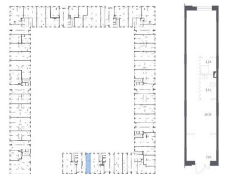
Продажа торговой площади на улице Лодочная, 50,4 м2
Цена:
28 440 720 ₽
Цена м2:
564 300 ₽
г Москва, ул Лодочная, д 27 к 2
Помещение свободного назначения формата Street Retail в ЖК "Пятницкие луга", Корпус: 1/2. ЖК состоит из 4-х 12-этажных корпусов, рассчитанных на 3 865 квартир, более 9 665 жителей. 20 минут на автомобиле от станции метро "Пятницкое шоссе" и "Митино". 1.7 км до Пятницкого шоссе. Плотный жилой массив. Рядом располагается супермаркет "Магнит", а также центральная площадь комплекса. Стабильный автомобильный и пешеходный трафик. 1 этаж 12-этажного жилого дома. Угловой блок. Отдельный вход. Смешанная планировка. Электрическая мощность: 7 кВт. Высота потолков: 4 м. Витринное остекление. Возможность размещения вывески. Наземная парковка.

