Продажа готового бизнеса в ЖК Клубный город на реке Primavera, 56,1 м2
Цена:
60 000 000 ₽
Цена м2:
1 069 518 ₽
г Москва, Покровская наб, д 16
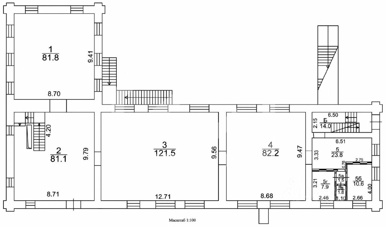
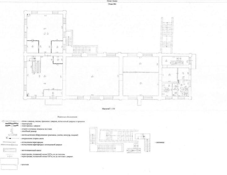
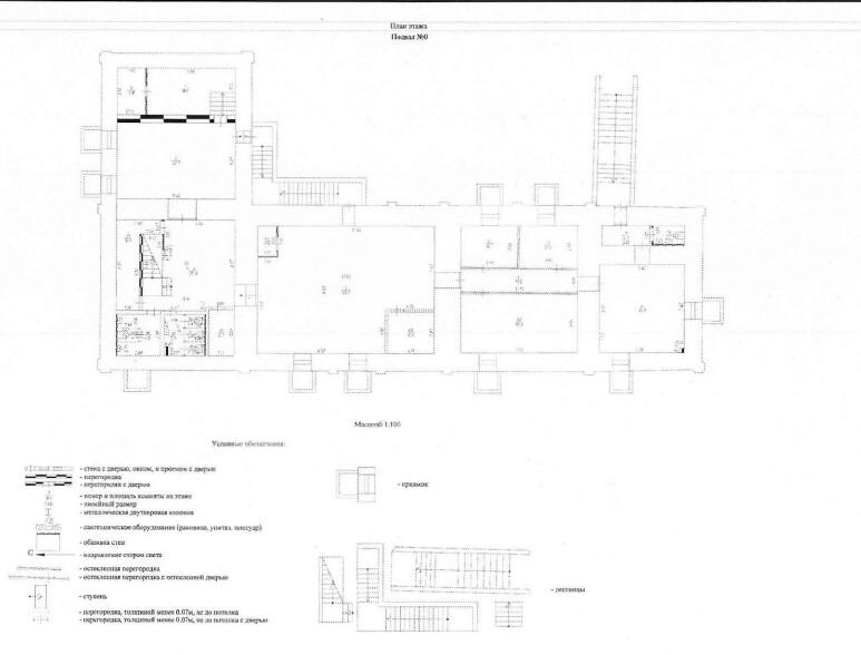
Отдельно стоящее административное здание с арендатором на Ольховской улице в ЦАО. 8 минут пешком от станции метро Красносельская. Центр плотного жилого массива. Сложившееся торговое окружение. Интенсивный автомобильный и пешеходный трафик. 1 этаж, эксплуатируемая мансарда и подвал. Открытая планировка. Дизайнерский ремонт. Вытяжка для общепита. Электрическая мощность: 220 кВт. Высота потолков: от 3 до 4 м. Арендатор: офис. МАП: 5 633 333 руб. Окупаемость: 9,2 лет.

