Продажа готового бизнеса в ЖК Клубный город на реке Primavera, 56,1 м2
Цена:
60 000 000 ₽
Цена м2:
1 069 518 ₽
г Москва, Покровская наб, д 16
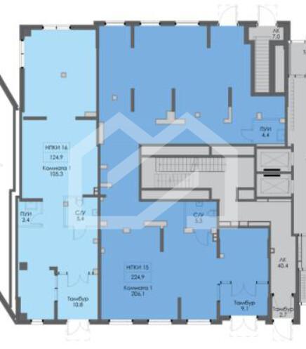
Помещение свободного назначения формата Street Retail с арендатором в ЖК "Зелёный Парк". Ввод в эксплуатацию: II квартал 2026 года. Первая линия пешеходного бульвара. ЖК состоит из 14 корпусов переменной этажности (от 11 до 28 этажей), рассчитанных на 3 426 квартир. 6 минут на автомобиле от станции МЦД-3 "Зеленоград-Крюково". 1 км до Кутузовского шоссе, 3.7 км до Георгиевского шоссе, 4.3 км до Пятницкого шоссе. Плотный жилой массив. Сложившееся торговое окружение. По соседству размещены сетевые супермаркеты: "Магнит" и "Пятерочка". Высокий автомобильный и пешеходный трафик. 1 этаж 25-этажного жилого дома. 3 отдельные входные группы. Смешанная планировка. Вытяжка под общепит. Все центральные коммуникации. Электрическая мощность: 68 кВт. Высота потолков: 5.5 м. Возможность размещения вывески. Зона погрузки/разгрузки. Наземная парковка. Рядом остановка общественного транспорта. Арендаторы: Магнит, ДДА. МАП: 1 200 000 руб.

