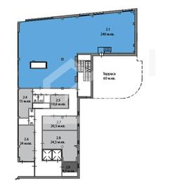
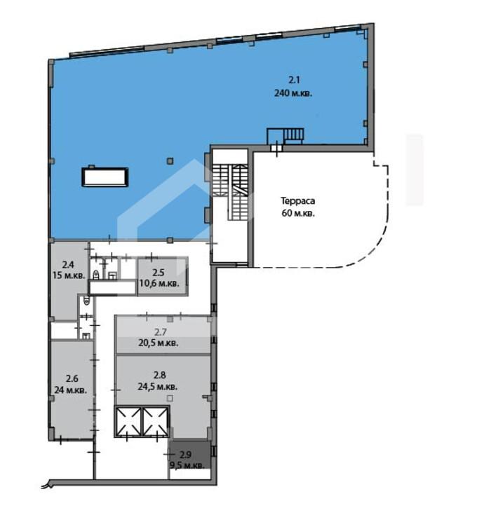
Аренда офиса у метро Салтыковская, 240 м2
Описание
Характеристики объекта
Описание
Офис в ТЦ "Галион" на первой линии шоссе Энтузиастов. 500 м до Леоновского шоссе, 2.4 км до Разинского шоссе, 6 км до Носовихинского шоссе. 15 минут на автомобиле от станций МЦД-4 "Салтыковская", "Ольгино" и "Кучино". Плотный жилой массив. Сложившееся торговое окружение. Интенсивный автомобильный и пешеходный трафик. В 2017 году проводилась реновация фасадов. В ТЦ 6 лифтов и 3 эскалатора. В комплексе центральные коммуникации (электричество, холодное водоснабжение, канализация), собственная газовая котельная (автономное отопление и горячая вода), приточно-вытяжная вентиляция, системы пожаротушения, видеонаблюдения, охранной и пожарной сигнализации. Проведены телефонные линии и Интернет. Инженерно-техническим обслуживанием занимается управляющая компания Sistema Property Management. 2 этаж 3-этажного здания. Открытая планировка. Возможность размещения вывески. Наземная парковка на 250 машиномест. Рядом остановка общественного транспорта
Расположение
Похожие объекты












