Аренда торговой площади у метро Алексеевская, 5 м2
Аренда в месяц:
70 000 ₽
Цена м2/год:
168 000 ₽
г Москва, пр-кт Мира, д 112
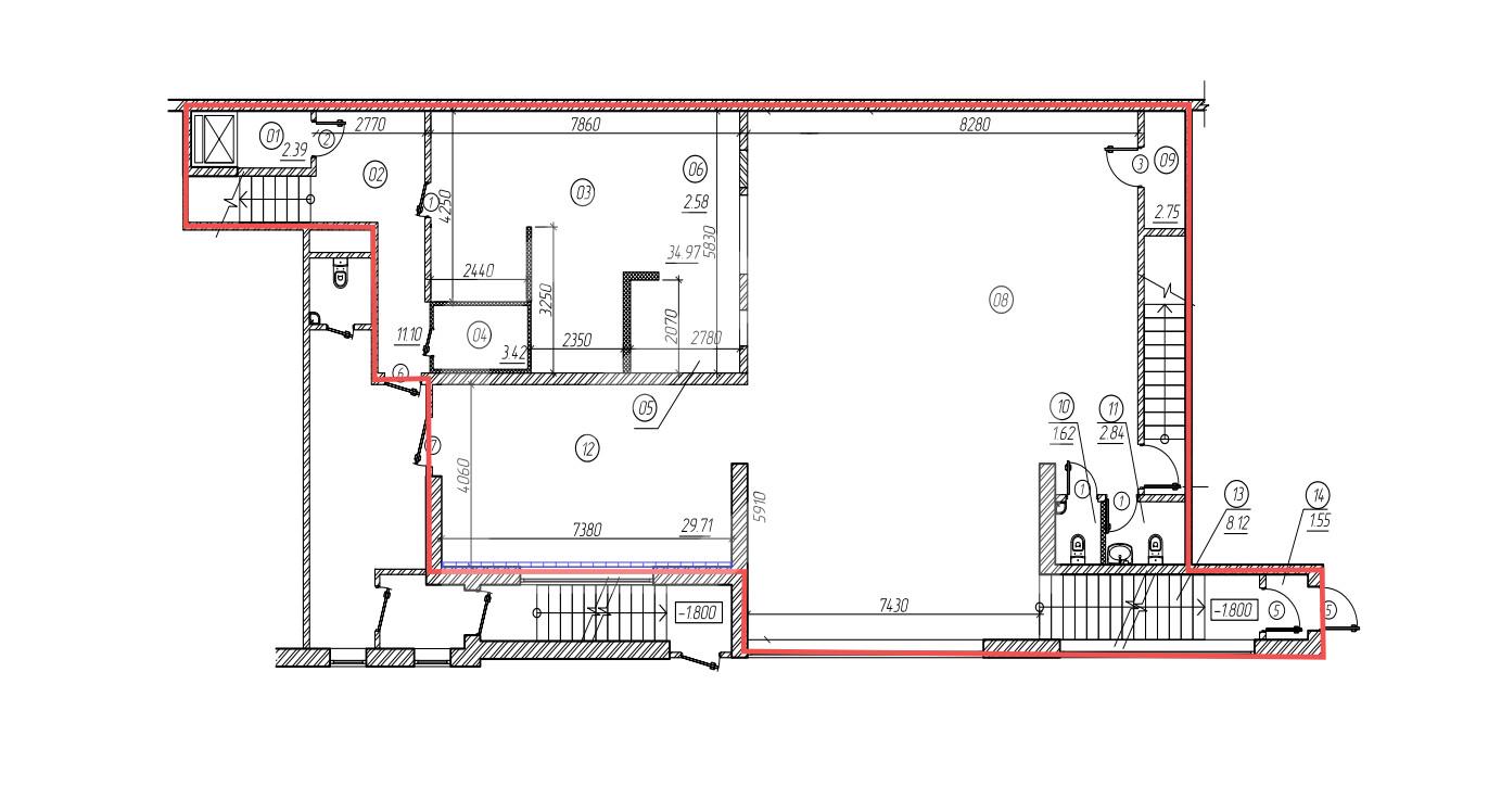
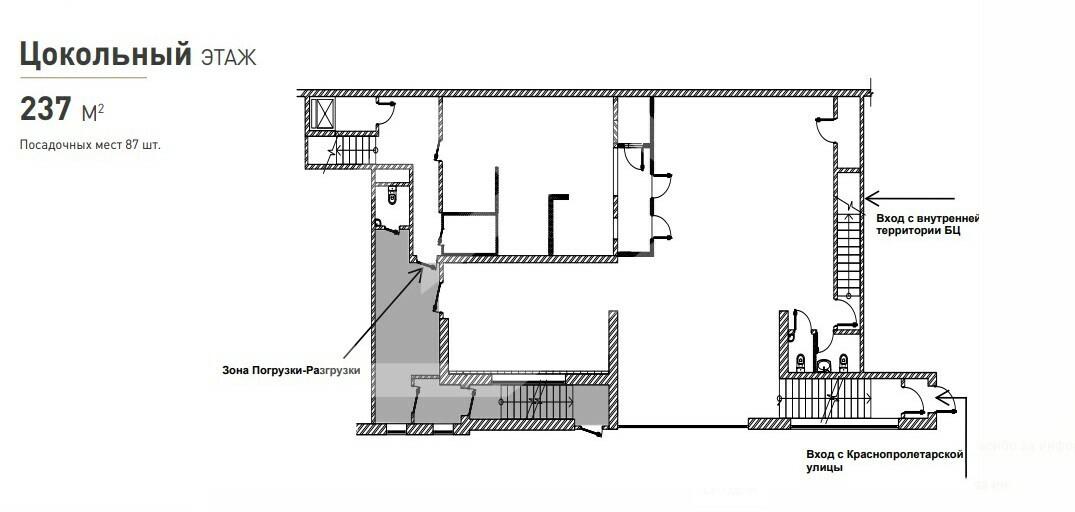
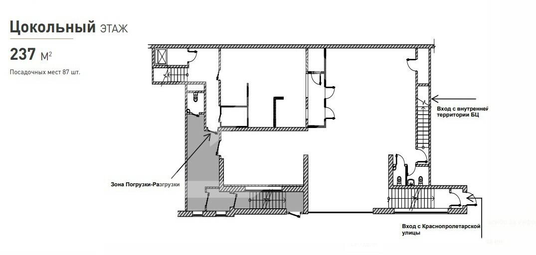
Помещение свободного назначения под бар/кафе/ресторан в бизнес-центре Hermitage Plaza на первой линии Краснопролетарской улицы. Корпус "А". 10 минут пешком от станции метро Маяковская. Центр плотного жилого массива. Сложившееся торговое и деловое окружение. Сверхинтенсивный автомобильный и пешеходный трафик. Цокольный этаж. Две отдельные входные группы: с фасада и с внутренней территории бизнес-центра. Зальная планировка. Дизайнерский ремонт. Место для вывески. Вытяжка для общепита. Рядом городская парковка. Электрическая мощность: 105 кВт. Высота потолков: 3.65 м.

