Продажа готового бизнеса в ЖК Клубный город на реке Primavera, 56,1 м2
Цена:
60 000 000 ₽
Цена м2:
1 069 518 ₽
г Москва, Покровская наб, д 16
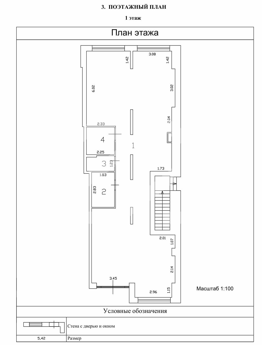
Помещение свободного назначения формата Street Retail с сетевым арендатором в микрорайоне комфорт-класса «Новоград Павлино». ЖК состоит из 35 корпусов переменной этажности. 15 минут на автомобиле от станции метро Некрасовка. 13 км от МКАД. Плотный жилой массив. Интенсивный автомобильный и пешеходный трафик. 1 этаж 22-этажного жилого дома. Отдельный вход с фасада. Открытая планировка. Витринное остекление. Зона погрузки/разгрузки. Парковка перед помещением. Электрическая мощность: 23 кВт. Высота потолков: 3,5 м. Арендатор: Бристоль, ДДА. МАП: 265 000 руб. Окупаемость: 11,9 лет.

