Аренда склада в г. Видное, 4 000 м2
Аренда в месяц:
5 824 000 ₽
Цена м2/год:
17 472 ₽
Московская обл, г Видное, пгт Горки Ленинские, промзона Технопарк, ул Западная, зд 3
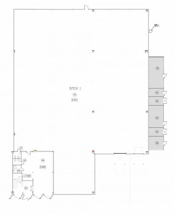
Предлагаем складское помещение в индустриальном парке Есипово-4 "Industrial City". Корпус "А" целиком - блоки 1+2.
Преимущества:
32 км. от МКАД по Ленинградскому шоссе, вблизи трассы А-107 и ЦКАД.
Комплекс складских помещений.
Развитая транспортная инфраструктура - удобный заезд с Ленинградского шоссе, М-11, А-107.
Цифровой промышленный коворкинг Industrial City в формате Light Industrial прошел сертификацию ассоциации по уровню готовности зданий к облачным подключениям и соответствию стандартам цифровой экономики.
Парки Industrial City подключены к мощным центрам обработки данных, имеют высокий уровень надежности и безопасности.
Готовая инженерная инфраструктура.
Парковка на территории комплекса.
Доступ к производственно-складским помещениям 24/7.
Комплексная эксплуатация объектов.
Охраняемая территория.
Технические характеристики:
Площадь блока: 4464.98 м2.
Производственная площадь - 3727 м2, офис - 620 м2.
Зона погрузки / разгрузки.
Корпуса А,В,С,D - высота - 10 м.
Ворота в каждом блоке есть в 2 вариантах:
- док на уровне 1,2 м - 2 шт
- ворота в 0 - 2 шт
Электричество: 100 кВт, возможно увеличение.
Сдан - 4кв. 2025 г.
Так как корректный адрес отсутствует на Яндекс.Картах, введен ориентировочный.
