ID: 863839
Ссылка скопирована!
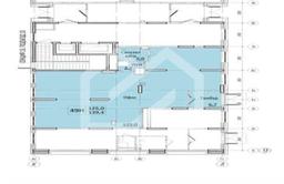
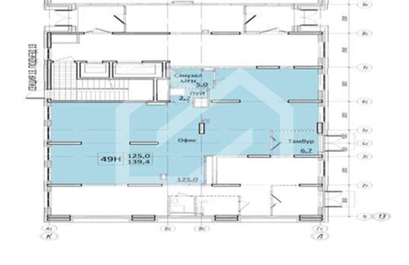
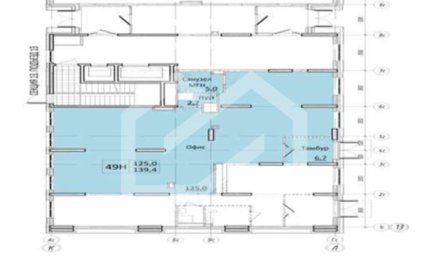
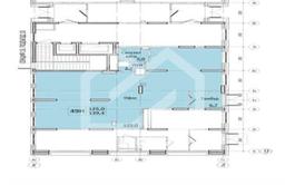
Аренда помещения свободного назначения в ЖК ««Мытищи Парк»», 139,4 м2
ID: 863839
Московская обл, г Мытищи, 1-й Стрелковый пер, д 3
Медведково
0 мин.
Арендная плата (УСН):348 500 ₽/ в мес
Ссылка скопирована!
Арендная ставка:2 500 ₽/м² в мес
Площадь: 139,4 м²
Московская обл, г Мытищи, 1-й Стрелковый пер, д 3
Медведково
0 мин.
Описание
Характеристики объекта
Характеристики ЖК
Описание
Помещение свободного назначения формата торговое помещение в центре жилого комплекса «Мытищи Парк». Первая линия. ЖК состоит из 7 корпусов, этажностью от 11 до 17 этажей, рассчитан на 4 316 квартир комфорт-класса. 25 минут на автомобиле от станции метро Медведково. Плотный жилой массив. Интенсивный пешеходный и автомобильный трафик. 1 этаж 17-этажного жилого дома. Отдельный вход с фасада. Открытая планировка. Витринное остекление. Зона погрузки/разгрузки. Место для вывески. Парковка перед фасадом. Ввод в эксплуатацию: 2 кв. 2025 г. Электрическая мощность: 28 кВт. Высотка потолков: 4 м.
Расположение
Московская обл, г Мытищи, 1-й Стрелковый пер, д 3
Медведково
25 мин.
Похожие объекты




























