Продажа склада на улице 60-летия Октября проспект, 303,5 м2
Цена:
65 000 000 ₽
Цена м2:
214 168 ₽
г Москва, пр-кт 60-летия Октября, д 11А стр 5
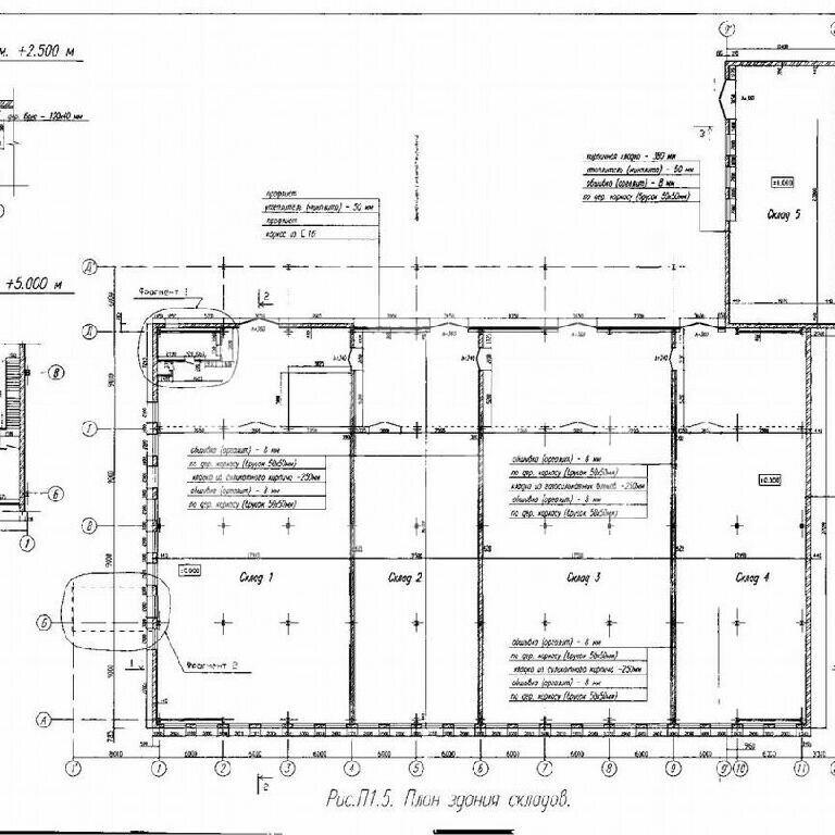
Предлагаем отдельно стоящее производственно-складское здание в Одинцово.
Преимущества:
Первая линия ул. Железнодорожная.
10 минут транспортом от ст. МЦД "Одинцово".
В окружении крупной промышленной зоны.
Отдельный въезд. 1 этаж. Открытая планировка.
Отопление центральное.
Возможно использование под производство.
ЗУ в собственности.
Парковка перед зданием.
В шаговой доступности остановка общественного транспорта.
Технические характеристики:
Высота потолков: 8 м.
Электрическая мощность: 200 кВт с возможностью увеличения.
Земельный участок: 3 614 м2, склад и ЗУ в собственности.

