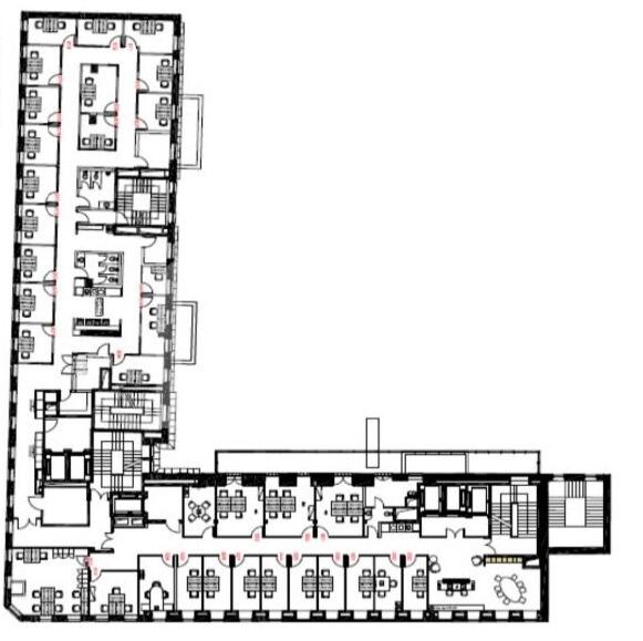
Аренда офиса на улице 1-й Волоколамский, 1 636 м2
Аренда в месяц:
4 324 494 ₽
Цена м²/год:
31 716 ₽
г Москва, 1-й Волоколамский проезд, д 10 стр 1
Сервисный офис в бизнес-центре класса «А» «Garden Mir». 1 минута пешком от станции метро Проспект Мира. Рядом кафе, конференц-зал, нотариальная контора, центральная рецепция, торговая зона, салон красоты, ресторан, банкомат. Поблизости: СК Олимпийский, Московская соборная мечеть, Ботанический сад МГУ «Аптекарский огород». 8 этаж. 760 кв.м, 110 рабочих мест (этаж целиком). Кабинетная система с полностью готовой инфраструктурой: отдельные кабинеты, две кухни, туалеты, переговорная комната, сервисная зона, серверная и секретарь.
