Продажа готового бизнеса в ЖК Новое Медведково, 180 м2
Цена:
55 000 000 ₽
Цена м2:
305 555 ₽
Московская обл, г Мытищи, пр-кт Астрахова, д 14
Готовый арендный бизнес в г. Чехов, территория "Губернский парк". Отдельно стоящее 2-ух этажное здание.
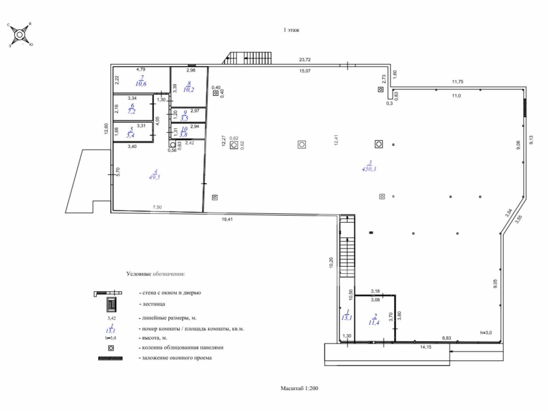
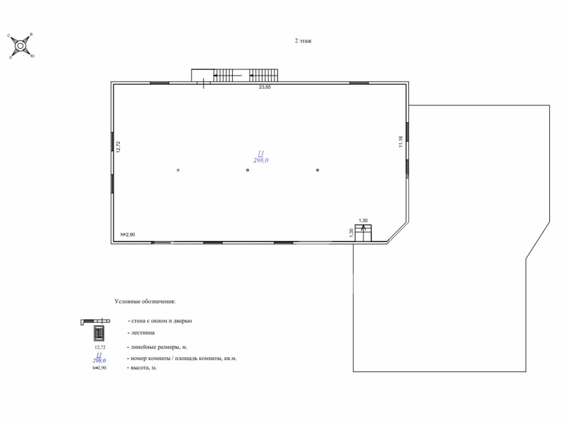
Первый этаж занимает "Пятерочка" (892 кв. м.), второй этаж - "Fix Price" (113 кв. м.).
Открытая планировка. Зона разгрузки-погрузки, отделка от арендаторов.
Парковка перед зданием. Интенсивный пешеходный и автомобильный трафик вдоль ТК
Земельный участок в собственности -7,5 соток.
Электрическая мощность: 150 кВт.
Арендаторы: Пятерочка, Fix Price. Общий МАП: 1 080 000 руб.

