Аренда склада в г. Химки, 8 250 м2
Аренда в месяц:
9 625 000 ₽
Цена м2/год:
13 992 ₽
Московская обл, г Химки, деревня Перепечино, стр 1Б/1
Помещение под пищевое производство в технопарке "Парк Рябиновая". Первая линия Рябиновой улицы. 10 минут пешком от ст. метро "Мещерская". Развитая транспортная инфраструктура, выезд на СЗХ, Боровское шоссе, 5 минут на транспорте от МКАД. 1 этаж 5-ти этажного складского здания. Открытая планировка. Отделка: Shell&Core. Подходит для организации фабрики-кухни и сортировки, хранения пищевой продукции и экспресс-доставки. Основное ВРИ: пищевое производство (6.4). Центральное отопление, водоснабжение, промышленная канализация. Система пожаротушения/оповещение. Пандус для малотоннажного транспорта, автоматические секционные ворота. Возможна аренда большего или меньшего метража. Отдельно арендуются офисные блоки от 100 кв.м. Огороженная территория. Собственный паркинг. Напротив остановка общественного транспорта.
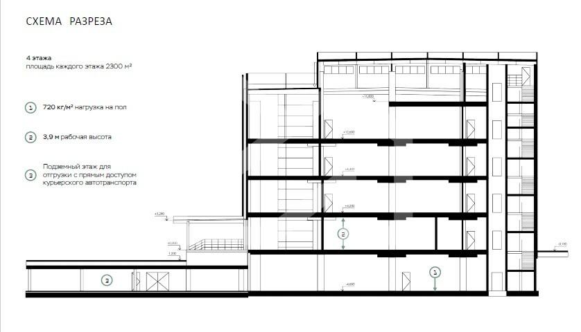
Технические характеристики:
Нагрузка на пол: 720 кг. на м2.
Высота потолков: 3,9 м.
Сетка колонн: 8*8.
Мощность электричества: 500 кВт на 1000 кв.м.
Ввод объекта в эксплуатацию: середина 2025 года.
Цена включает НДС и ОРЕХ.
Прямой представитель собственника, без комиссии для арендатора.

