Продажа здания на улице Орджоникидзе, 7 715,9 м2
Цена:
1 700 000 000 ₽
Цена м2:
220 324 ₽
г Москва, ул Орджоникидзе, д 11 стр 11
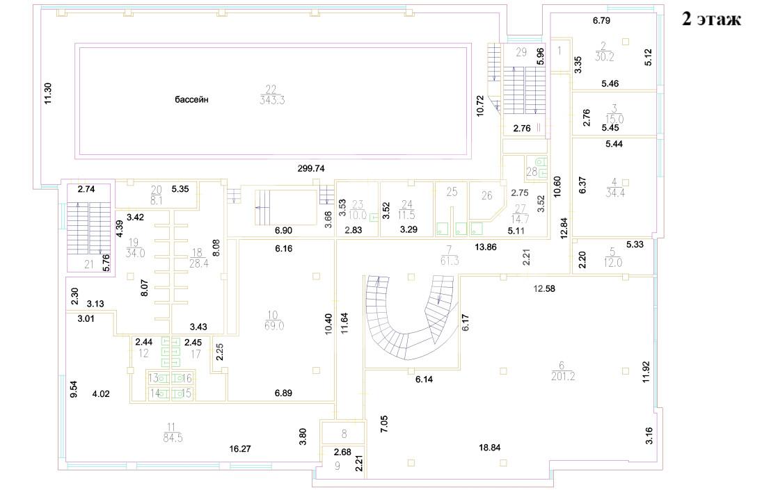
Отдельно стоящее здание класса А на улице Ангарской. 14 минут пешком от станции МЦД-3 Грачёвская. Плотный жилой массив. Интенсивный автомобильный и пешеходный трафик. 1, 2, 3 этаж и надстройка. Смешанная планировка: тренажерный зал с современным оборудованием, 25-метровый бассейн, детский бассейн, кардиозал, 4 зала для групповых программ, зона единоборств с рингом, банный комплекс, детский клуб, фитнес-ресторан. Собственная открытая парковка на улице на 29 парковочных мест. Рядом остановки общественного транспорта. Электрическая мощность: 50 кВт. Высота потолков: 1 этаж - 3,2 м., 2 и 3 этаж - 2,85 м. В настоящий момент есть арендатор: фитнес-клуб «Арт-спорт».

