Аренда офиса на улице Загородное шоссе, 508 м2
Аренда в месяц:
1 058 333 ₽
Цена м2/год:
24 996 ₽
г Москва, Загородное шоссе, д 1
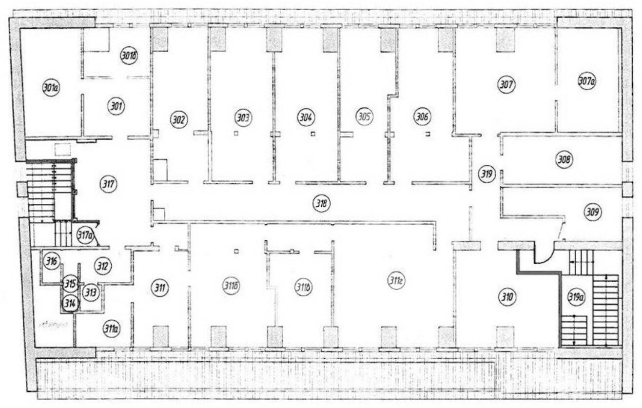
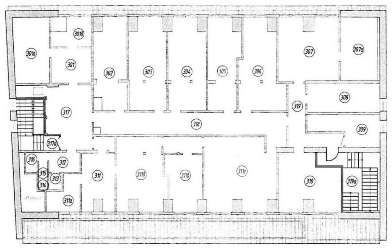
Административное здание в Таганском районе Москвы. Недалеко от станций Крестьянская застава и Таганская (4 мин. пешком), Пролетарская (15 мин. пешком). Офисное помещение площадью 461,7 кв. м. (весь 3 этаж). Кабинетная планировка, с отделкой. Высота потолков - 2.8 м. Система вентиляции естественная, система кондиционирования - сплит-система. Круглосуточная система видеонаблюдения. Рядом находится парковка, как при офисе, так и городского назначения. В ставку включены ОРЕХ и НДС.

