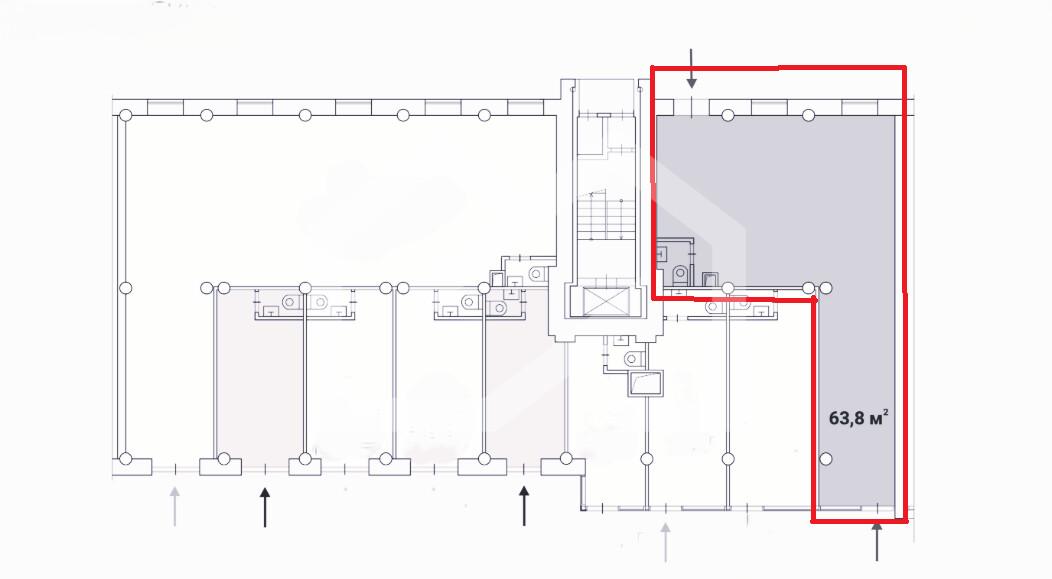
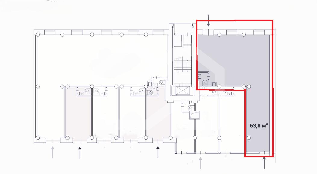
Продажа помещения свободного назначения на улице Молодогвардейская, 153 м2
Цена:
76 500 000 ₽
Цена м2:
500 000 ₽
г Москва, ул Молодогвардейская, д 4 к 1
Помещение свободного назначения формата Street Retail в 1 минуте ходьбы от выхода из метро Планерная. Первая линия. Плотный жилой массив. Сложившееся торговое окружение. ТПУ «Планерная» имеет 6 этажей, автовокзал, платную парковку на 600 м/м, галерею и супермаркет. Пассажиропоток станции составляет до 15 000 чел. в час. Интенсивный пешеходный и автомобильный трафик. 1 этаж 9-этажного жилого дома. Отдельная входная группа с фасада а с 1-ой линии, есть вход со двора. Открытая планировка. Отделка от арендатора. Витринное остекление. Место для вывески. Все городские инженерные коммуникации, санузел, отдельный прибор учета электричества. Парковка на прилегающих улицах. Высота потолков: 3,7 м.

