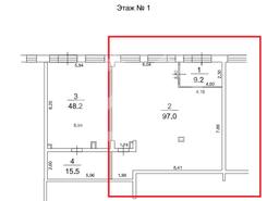
Аренда торговой площади на улице Варшавское шоссе, 238,6 м2
Аренда в месяц:
600 000 ₽
Цена м2/год:
30 168 ₽
г Москва, Варшавское шоссе, д 2
Помещение свободного назначения формата Street-Retail в новом ЖК бизнес-класса Stellar City. 1-ая линия Сколковского шоссе. ЖК включает в себя 7 корпусов и около 4 500 квартир. Интенсивный пешеходный и автомобильный трафик. Сложившееся торговое окружение: БЦ класса А+, ЖК Сколково Парк. Развитая инфраструктура. 1 этаж жилого дома. Отдельный вход с фасада. Зона погрузки/разгрузки. Открытая планировка. Витринное остекление по фасаду. Парковка перед помещением. Напротив остановка общественного транспорта.

