Аренда офиса на улице Международное, 1 646,9 м2
Аренда в месяц:
2 176 653 ₽
Цена м²/год:
15 852 ₽
г Москва, Международное шоссе, д 28Б стр 3
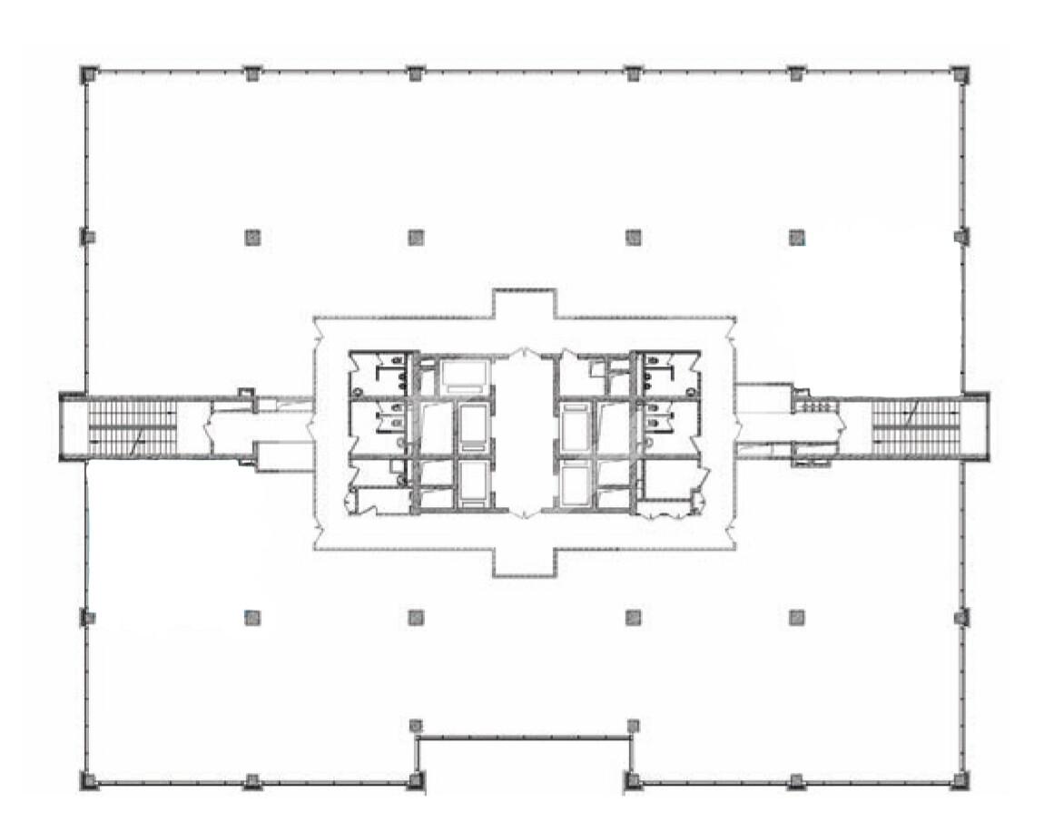
Бизнес-квартал класса «А» Neopolis в Новомосковском округе Москвы (САО), деревне Румянцево. Деловой квартал представляет собой четыре офисных девятиэтажных корпуса, спроектированных английским архитектором Дэвидом Роденом. Фасады здания отделаны навесными вентилируемыми плитами из керамогранита и имеют сложное панорамное остекление. Строительство завершено в июне 2017 года. Верхние этажи зданий дополнены уютными открытыми террасами. Деловой квартал состоит из 4 корпусов, каждые по 9 этажей (по 19 056 кв. м.). 15 минут пешком от станции метро Саларьево и Румянцево. Также на автобусах и маршрутных такси за десять минут можно доехать до станции «Юго-Западная». Расстояние до МКАД – 3 км по Киевскому шоссе. Автомобилистам будет удобно выезжать из города по Ленинскому проспекту. В 8 км расположен аэропорт Внуково. Плотный жилой массив. Интенсивный автомобильный и пешеходный трафик. Общая площадь зданий – 104000 кв. м, офисная часть – 63000 кв. м. Открытая планировка. На территории два четырехэтажных крытых паркинга на 1360 машиномест и открытая гостевая парковка на 119 машиномест.
