ID: 833936
Ссылка скопирована!
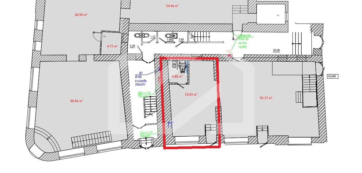
Аренда помещения свободного назначения у метро Добрынинская, 39,6 м2
ID: 833936
г Москва, Серпуховская пл, д 36/71 стр 1
Добрынинская
2 мин.
Арендная плата (УСН):450 000 ₽/ в мес
Ссылка скопирована!
Арендная ставка:11 363 ₽/м² в мес
Площадь: 39,6 м²
г Москва, Серпуховская пл, д 36/71 стр 1
Добрынинская
2 мин.
Описание
Характеристики объекта
Описание
Помещение свободного назначения на Серпуховской площади, в историческом "Доходном доме с лавками". Удачная локация на перекрёсте ул. Большой Ордынки и Садового кольца. 2 минуты пешком от станции метро Добрынинская. Плотный жилой массив. Интенсивный пешеходный и автомобильный трафик. 1 этаж. Отдельный вход с фасада. Открытая планировка. Рядом пешеходный переход, остановка общественного транспорта. Увеличенная электрическая мощность (15 кВт).
Расположение
г Москва, Серпуховская пл, д 36/71 стр 1
Добрынинская
2 мин.
Похожие объекты




















