Продажа арендного бизнеса у метро Проспект Вернадского, 36 536 м2
Описание
Характеристики объекта
Описание
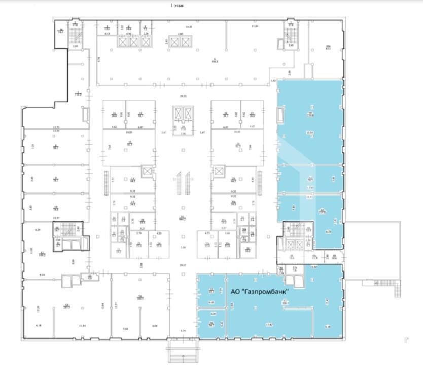
Предлагается бизнес-центр Forum City. Здание находится на первой линии проспекта Вернадского, всего в 2-х минутах ходьбы от станции метро "Проспект Вернадского" и в 10 минутах от станции "Новаторская" Большой кольцевой линии.
Здание было построено в 1995 году и прошло редевелопмент в 2018 году. Общая площадь здания составляет 36 536 кв.м., из которых 25 600 кв.м. сдаются в аренду. Офисная площадь составляет 21 156 кв.м. арендная ставка включая эксплуатацию 42 000 руб. за кв.м в год.
На территории бизнес-центра предусмотрен паркинг на 270 машиномест с коэффициентом 1/100 м² по цене 6 500 ₽/м./мес. (НДС 20% не включен). В здании также имеется 30 машиномест с тем же коэффициентом и стоимостью.
Бизнес-центр обеспечивает круглосуточный доступ, видеонаблюдение, систему контроля доступа (СКД), охранную сигнализацию, пожарную сигнализацию, гидрантную систему пожаротушения, систему дымоудаления, спринклерную систему пожаротушения и голосовое оповещение.
Высота потолков в здании варьируется от 2.9 до 4.3 метров, а шаг колонн составляет 6 × 6 метров, что обеспечивает гибкость в планировке и использовании пространства.
Расположение
Похожие объекты
























































