Продажа готового бизнеса в ЖК Новое Медведково, 180 м2
Цена:
55 000 000 ₽
Цена м2:
305 555 ₽
Московская обл, г Мытищи, пр-кт Астрахова, д 14
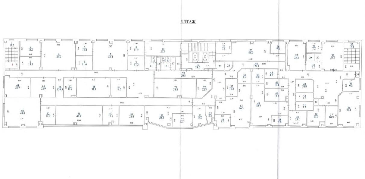
Офисный ГАБ на 5 этаже Бизнес-центра "Серебрякова" класса В+, расположен в 7 минутах пешком от станции метро Ботанический Сад.
Район с развитой инфраструктурой.
Напротив бизнес центра расположен ЖК Silver, неподалеку торговый центр Европолис.
Здание площадью 6.936 метров имеет 6 наземных этажей.
Земля площадью 4.793 м2 в собственности!
Презентабельная входная группа, в зоне ожидания расположена кофейня.
Лифты-2
Система приточно-вытяжной вентиляции, кондиционеры.
Земля площадью 4.793 м2 в собственности.
Большая парковка на территории - около 85 м\м.
Рядом остановки общественного транспорта.
Здание заселено арендаторами на 100%.
Окупаемость по ЧОД 7 лет.

