Аренда здания у метро Кожуховская, 2 383,5 м2
Аренда в месяц:
6 554 625 ₽
Цена м²/год:
33 000 ₽
г Москва, 2-й Южнопортовый проезд, д 33 стр 1
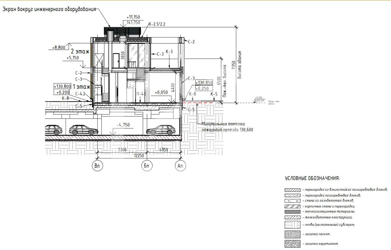
Отдельно стоящее здание под общепит в историческом районе Покровское-Стрешнево. Первая линия Покровской набережной. Ближайшая станция метро "Спартак". Объект расположен на набережной Москвы реки. Район новой и современной жилой застройки. Высокий автомобильный и пешеходный трафик. 1, 2 этаж + открытая терраса. 5 отдельных входных групп. Зальная планировка. Есть возможность перепланировки. Вытяжка под общепит. Панорамное остекление. Место для вывески. Парковка вдоль дороги.
Общие характеристики:
Общая площадь: 670.4 кв. м.
1 этаж – 327,4 кв.м.
2 этаж – 343 кв.м.
Электрическая мощность: до 80 кВт
Высота потолка: 1 этаж – 4 м; 2 этаж – 3.65 м.
