Аренда торговой площади у метро Мичуринский проспект, 2 000 м2
Описание
Характеристики объекта
Описание
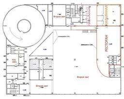
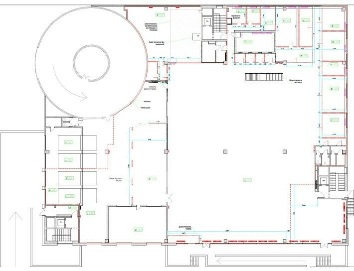
Помещение под автосалон с сервисной зоной на западе Москвы. Первая линия ул. Василия Ланового. 5 минут пешком от станции метро "Мичуринский проспект". Развитая транспортная инфраструктура: выезд на основные магистрали города, Мичуринский проспект, МКАД и ТТК. Район плотной жилой застройки. Развитое деловое окружение. 1 этаж 6-ти этажного административного здания. Отдельная входная группа. Зальная планировка. Приточно-вытяжная система вентиляции. Центральная система кондиционирования. Панорамное остекление. Три лифта Sigma г/п 800 кг. Парковка перед зданием.
Технические характеристики:
Площадь автосалона 2 000 метров.
Электрическая мощность: 540 кВт с возможностью увеличения.
Нагрузка на пол: 600 - 1 000 кг/м.
Высота потолков: от 5 до 7 метров в зоне автосалона и обслуживания авто. 3,2 метра в зоне АБВ и офисов.
Шаг колонн: 12*18 метров.
Расположение
Похожие объекты






















