Аренда помещения свободного назначения на улице Ленинский, 108,2 м2
Описание
Характеристики объекта
Описание
Помещение свободного назначения с качественным ремонтом в жилом доме в престижном районе. Развитая транспортная инфраструктура: выезд на Ленинский проспект в 50 м. Густонаселенный район плотной жилой застройки со сложившимся торговым окружением. Интенсивный пешеходный и автомобильный трафик. Ближайшая станция метро — Новаторская (11 минут пешком). В 2024 году в 500 метрах откроется станция метро — улица Строителей. Рядом пешеходный переход и остановка общественного транспорта.
В этом же доме расположены: магазин Магнолия, Салон красоты Алекса, Wildberries, аптека Столицы, Московской Дом Книги и др. Соседнее помещение занимает оздоровительный клуб.
Цокольный этаж 8-этажного жилого дома. Три контура приточно-вытяжной вентиляции с кондиционированием. Два бойлера на все мокрые точки (на случай отключения ГВС). Охранно-пожарная сигнализация выведена на пульт охраны. Помещение на техническом обслуживании с момента окончания ремонта. Можно установить дополнительную наружную рекламу. Бесплатная парковка перед входом.
Полностью технически оснащен под любой вид деятельности.
Технические характеристики:
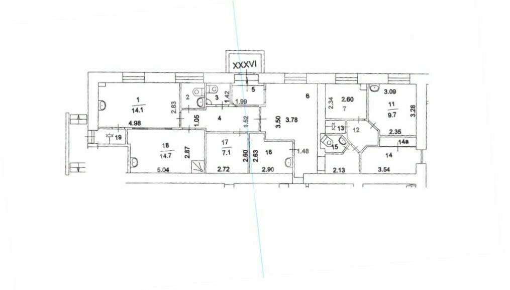
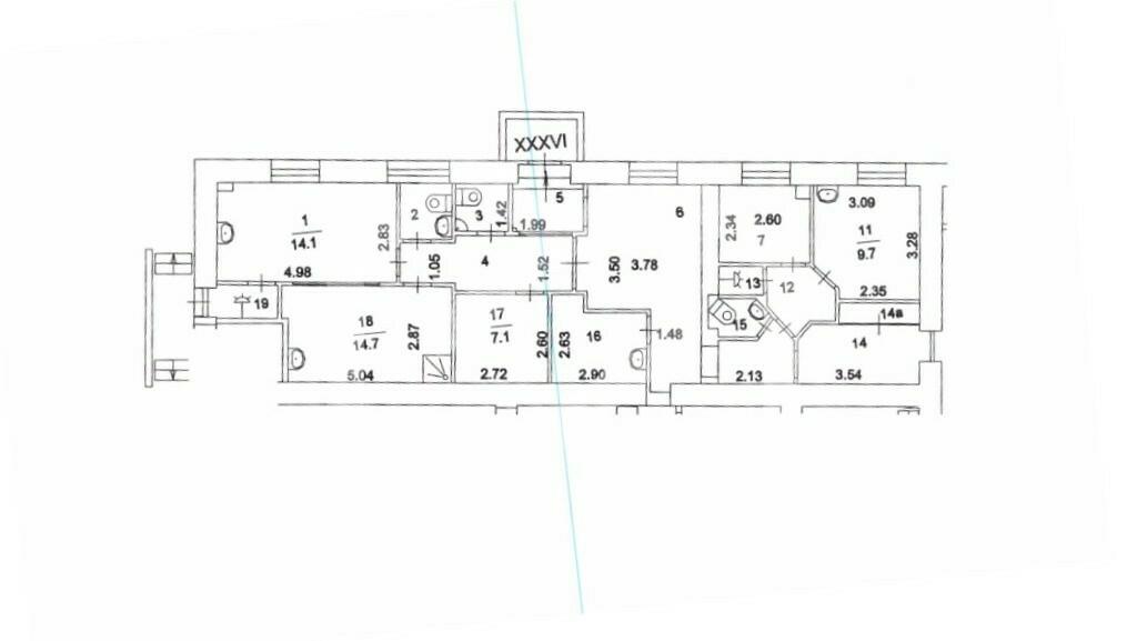
Площадь блока: 108,2 кв.м
Электрическая мощность: 20 кВт
Высота потолков: 2,4 м
Расположение
Похожие объекты
















