Продажа арендного бизнеса у метро Москва-Сити, 72 м2
Цена:
24 000 000 ₽
Цена м²:
333 333 ₽
г Москва, Звенигородское шоссе, д 7
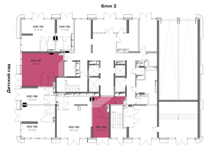
Помещение свободного назначения в новом ЖК бизнес-класса Сокольники от девелопера Стоун. Ввод в эксплуатацию - 2027 год, разрешение на строительство – июнь 2024 года. Комплекс состоит из трех башен, этажностью от 24 до 33 этажей, рассчитанных на 764 квартиры, между парком Сокольники и набережной реки Яуза. Удобный выезд на ТТК в 2 км, на Садовое кольцо в 6 км. Плотный жилой массив. Интенсивный пешеходный и автомобильный трафик. В 13 минутах ходьбы от станций метро «Сокольники» и «Электрозаводская». 1 этаж 28 этажного жилого дома. Отдельная входная группа. Открытая планировка. Подземный двухуровневый паркинг. Так как кopрeктный адрес отсутствует нa Яндекс.Картах, введён ближайший.
Технические характеристики:
Площадь блока: 46.8 м
