Продажа готового бизнеса в ЖК Клубный город на реке Primavera, 56,1 м2
Цена:
60 000 000 ₽
Цена м2:
1 069 518 ₽
г Москва, Покровская наб, д 16
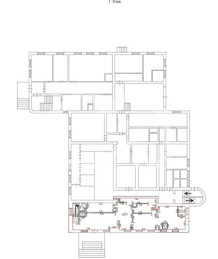
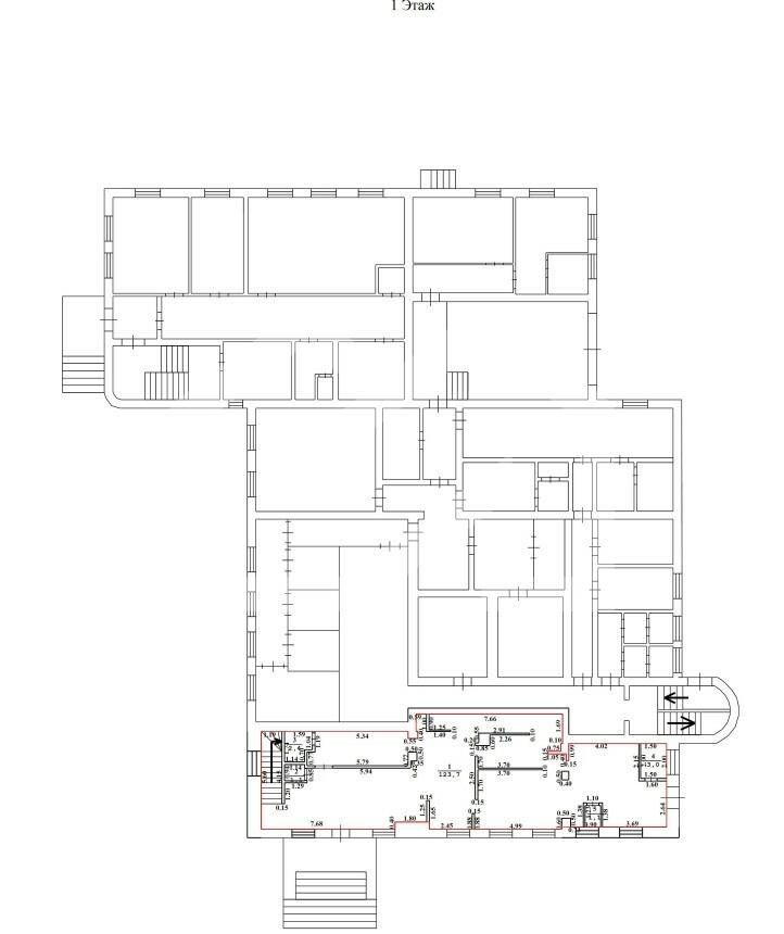
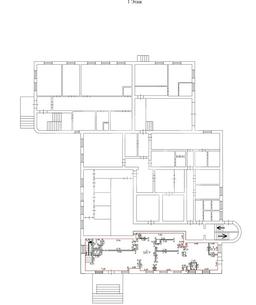
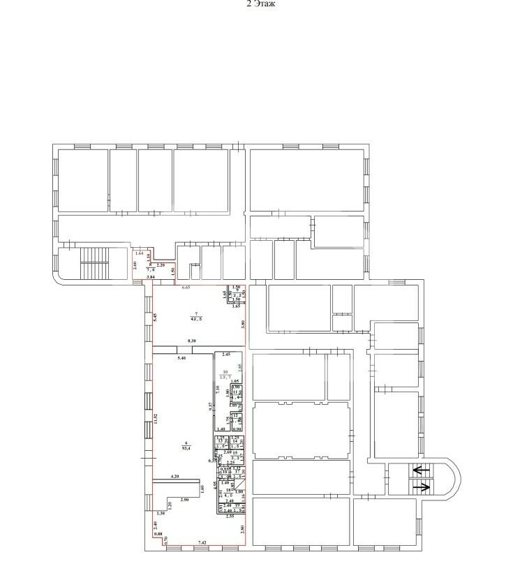
Торговое помещение с сетевым арендатором KFC (Rostic's) в г. Егорьевск. Центр города. Развитая транспортная инфраструктура: выезд на Егорьевское шоссе в 3 км. Густонаселенный жилой район. Интенсивный пешеходный и автомобильный трафик. 1,2 этаж. 2 отдельные входные группы. Открытая планировка. Подключены все центральные коммуникации, канализация, жироуловители, ХВС. Рядом остановки общественного транспорта. Земля в собственности.
Технические характеристики:
1 этаж: 131,3 кв.м
2 этаж: 177,8 кв.м
Электрическая мощность: 150 кВт
Высота потолков: 3 м
Арендатор:
ресторан быстрого питания " KFC"
ДДА на 15 лет, 7%
МАП: 440 000 руб

