Продажа готового бизнеса в ЖК Клубный город на реке Primavera, 56,1 м2
Цена:
60 000 000 ₽
Цена м2:
1 069 518 ₽
г Москва, Покровская наб, д 16
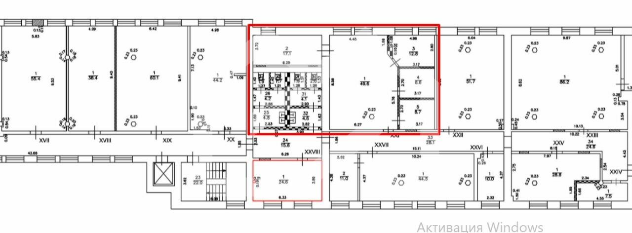
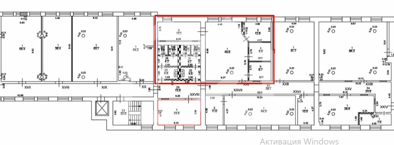
Офис с арендатором в Лофт-квартале "Товарищество Рябовской Мануфактуры" на пересечении Большого Староданиловского и Холодильного переулков. Первая линия. 2 минуты пешком от станции метро "Тульская". 2 минуты до ТТК и 10 минут до Садового кольца. Развитая деловая и торговая инфраструктура района. Рядом расположены Арбитражный суд, ТЦ "Ереван Плаза", МФК "Тульский", Росреестр и другие крупные объекты. Круглосуточный доступ без пропусков. 2 этаж 4-этажного здания. Общий вход. Смешанная планировка. Офисная отделка. Электрическая мощность: 35 кВт. Арочные окна. Наземная парковка на 165 машиномест. Арендатор: Офис торговой компании. МАП: 271 050 руб. Окупаемость: 11.9 лет.

