Продажа помещения свободного назначения на улице Молодогвардейская, 153 м2
Цена:
76 500 000 ₽
Цена м2:
500 000 ₽
г Москва, ул Молодогвардейская, д 4 к 1
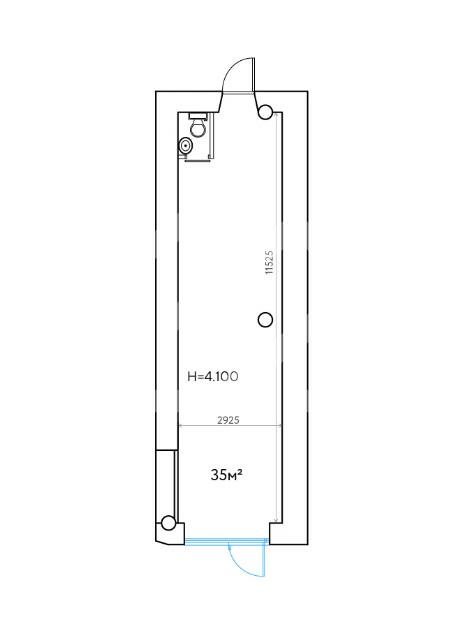
Помещение свободного назначения формата Street Retail в Северном Тушино. 2 мин. пешком до ст. метро Сходненская. 1-я линия домов по улице бульвар Яна Райниса. Интенсивный пешеходный трафик у фасада дома — до 2 500, на другой стороне ул. до 2 000 чел/час. Пассажиропоток 83 тыс.чел./сут. Рядом и напротив остановки общественного транспорта. Крупный сложившийся жилой район с высокой плотностью застройки и развитой инфраструктурой. Отличная видимость и доступность с прилегающих улиц. Помещение находится на 1-м этаже 9-этажного здания. Высота потолков: 4,1 м. Открытая планировка. Витринные окна и отдельный вход с фасада. Электрическая мощность: 15 кВт.

