Продажа готового бизнеса в ЖК Клубный город на реке Primavera, 56,1 м2
Цена:
60 000 000 ₽
Цена м2:
1 069 518 ₽
г Москва, Покровская наб, д 16
Торговое помещение с сетевым арендатором в отдельно стоящем торговом здании на первой линии Садового кольца, ЦАО, Пресненский район. Рядом станция метро Маяковская (4 мин пешком). Интенсивный пешеходный трафик вдоль фасада. Сложившееся торговое окружение. 1 этаж. Отдельный вход с фасада, открытая планировка, витринные окна, мокрая точка. Возможность установки вытяжки для общепита и вывески.
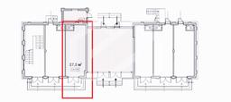
Технические характеристики:
Площадь блока: 27.2 кв. м.
Высота потолков: 3 м.
Электрическая мощность: 15 кВт.
Арендатор:
-арендатор: Чайная «Macau»;
-прибыль: 580 000 руб./мес.;
-окупаемость: 11.8 лет;
-доходность: 8.4%.

