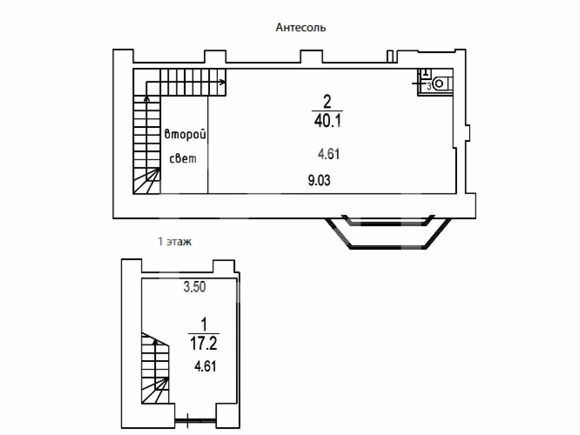
Продажа готового бизнеса в ЖК Клубный город на реке Primavera, 56,1 м2
Цена:
60 000 000 ₽
Цена м2:
1 069 518 ₽
г Москва, Покровская наб, д 16
Торговое помещение в шаговой доступности от станции метро "Пушкинская" (1 мин.). Деловой район с плотным жилым массивом, в окружении культурных и исторических объектов. 1 этаж + антресоль. Независимый вход с фасада, высокие потолки, открытая планировка, возможность размещения наружной рекламы. Сверхинтенсивный пешеходный и автомобильный трафик рядом с помещением генерируется благодаря большому количеству туристов и близости широкого спектра известных достопримечательностей к блоку. Электрическая мощность: 20 кВт, высота потолков: 3.7 м.
Арендатор: чайная MET TEA. МАП 900 000 руб.

