Аренда офиса на улице 1-й Волоколамский, 1 636 м2
Аренда в месяц:
4 324 494 ₽
Цена м²/год:
31 716 ₽
г Москва, 1-й Волоколамский проезд, д 10 стр 1
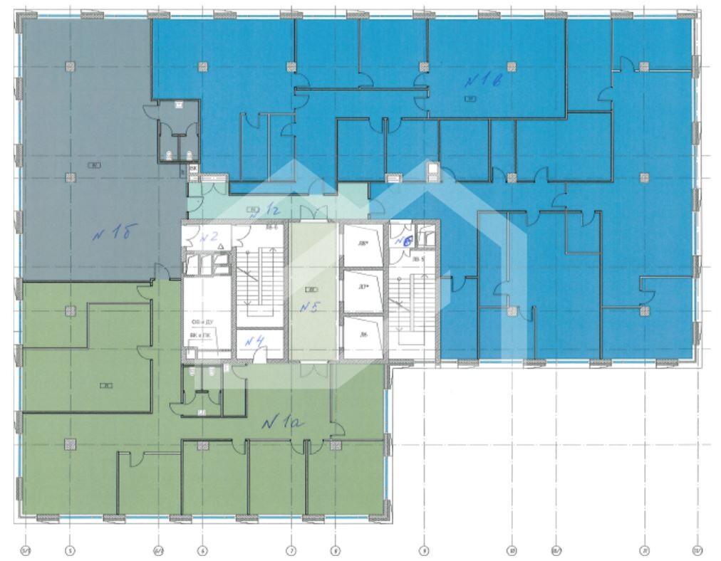
Предлагаем в аренду офисное помещение площадью 1036 кв. м, расположенное на 5 этаже в БЦ Данилов Плаза.
Преимущества объекта:
- Бизнес-центр класса Б+
- Помещение предлагается с отделкой
- Планировка смешанная
- Возможно деление на блоки 286 и 750 кв.м
- Подземная парковка
