Аренда торговой площади на улице Варшавское шоссе, 238,6 м2
Аренда в месяц:
600 000 ₽
Цена м2/год:
30 168 ₽
г Москва, Варшавское шоссе, д 2
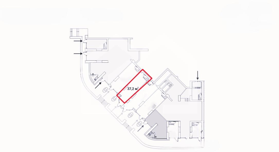
Помещения свободного назначения формата Street Retail напротив выхода из метро Молодежная. Крупный сложившийся жилой район с высокой плотностью застройки и развитой инфраструктурой. Рядом ЖК "Достояние", "Vander Park", "Рублевские огни", "Ярцевская 24", торговые центры "Кунцево Плаза", "Трамплин", ВУЗ "МАИ". Первая линия. 1 этаж жилого здания. Отдельный вход с фасада. Планировка — свободная (одним залом), перекрытия - ж/б. Все городские инженерные коммуникации. Есть вытяжные воздуховоды до уровня кровли. Помещения подготовлены под чистовую отделку.
Технические характеристики:
Площадь блока: 37.2 кв. м.
Высота потолков: 3.6 - 4.1 м.

