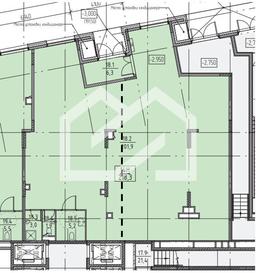
Продажа торговой площади на улице Лодочная, 50,4 м2
Цена:
28 440 720 ₽
Цена м2:
564 300 ₽
г Москва, ул Лодочная, д 27 к 2
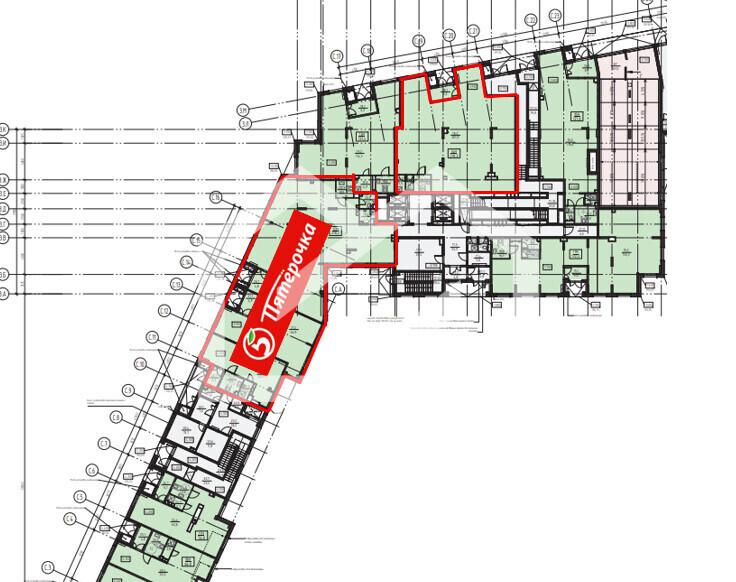
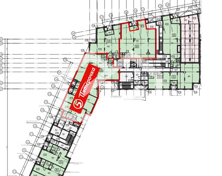
Помещение свободного назначения формата Street Retail в ЖК "Parkside", Корпус: 2. Помещение расположено на въезде, рядом с будущим супермаркетом Пятерочка. 8 минут на автомобиле от станций метро "Пражская" и "Южная". 2.8 км до Варшавского шоссе, 6.5 км до МКАД. 1 этаж 22-этажного жилого дома. Отдельный вход с улицы. Открытая планировка. Электрическая мощность: 44 кВт. Высота потолков: 6.3 м. Витринное остекление. Возможность размещения вывески. Зона разгрузки/погрузки. Наземная парковка. Рядом остановка общественного транспорта.

