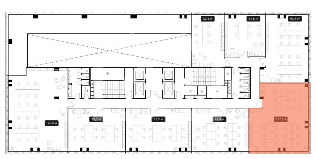
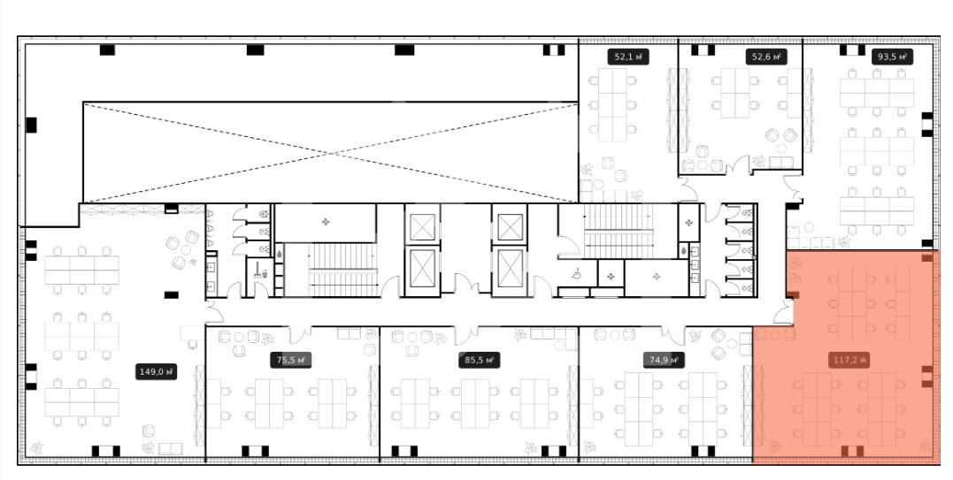
Продажа офиса у метро Калужская, 2 548,6 м2
Цена:
815 000 000 ₽
Цена м²:
319 783 ₽
г Москва, ул Бутлерова, д 17
Офисное помещение в БЦ «Qoob» Корпус В. Первая линия ул. А. Свиридова. 50 метро от станции «Кунцевская». Выезд на проспект Багратиона, Можайское и Рублевское шоссе. Новый микрорайон плотной жилой застройки. Собственная инфраструктура. В БЦ предусмотрены функциональные зоны для отдыха и работы на крыше. Высокий автомобильный и пешеходный трафик. 2 этаж 10-этажного административного здания. Смешанная планировка. Под чистовую отделку. Витринное остекление. Благоустроенная территория с прогулочными аллеями и магазинами. Наземная парковка.
