Продажа готового бизнеса в ЖК Клубный город на реке Primavera, 56,1 м2
Цена:
60 000 000 ₽
Цена м2:
1 069 518 ₽
г Москва, Покровская наб, д 16
Торговое помещение расположено в центре плотного жилого массива.
Первая линия, отличная видимость с проезжей части, перед фасадом — пешеходный переход и остановка общественного транспорта. До станции метро «Сходненская» — 7 минут пешком. По фасаду и со двора предусмотрены отдельные входы; вдоль здания организована стихийная парковка.
Открытая планировка, витринное остекление.
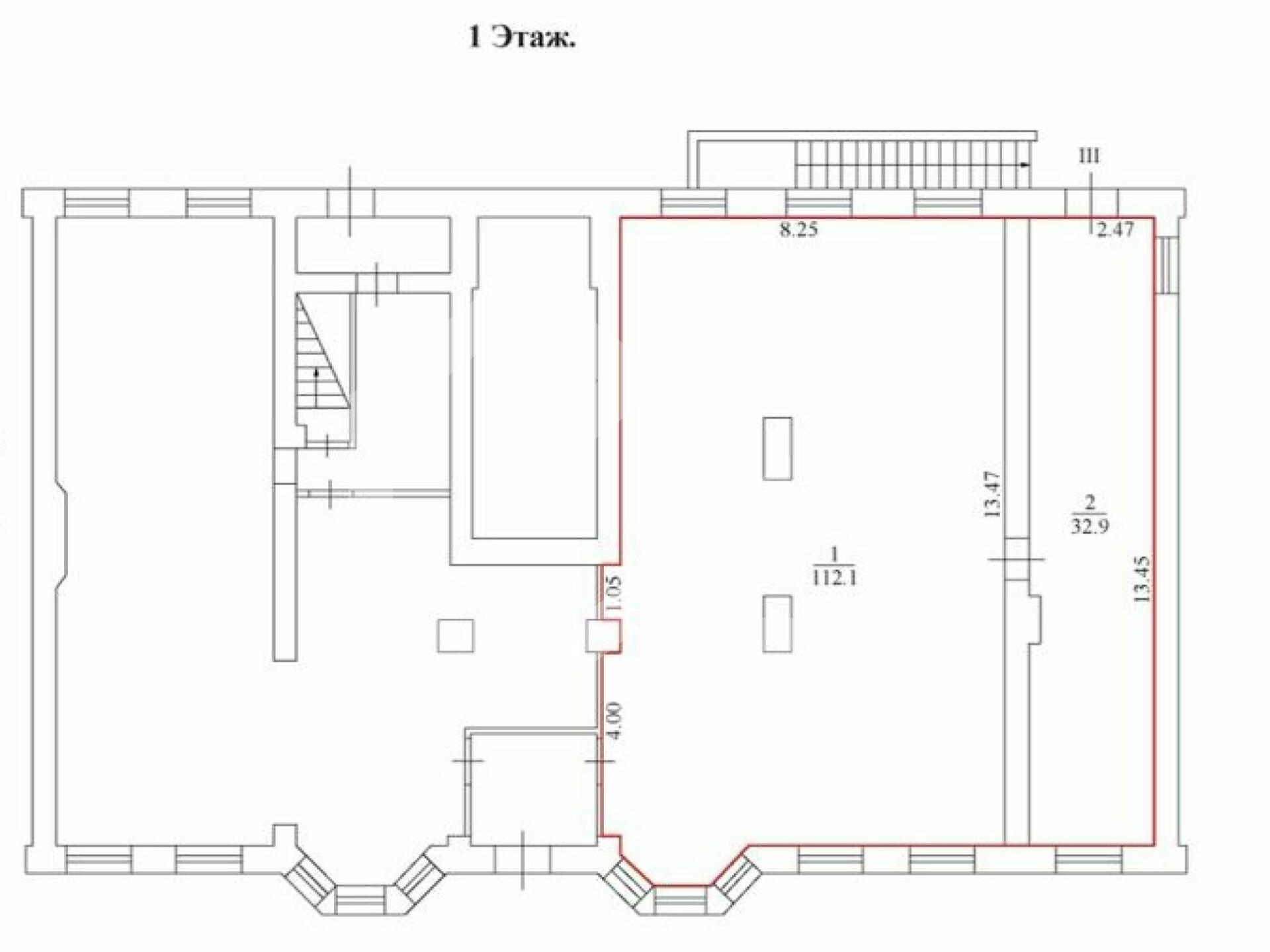
Технические характеристики
• Этажи: 1-й этаж + подвал
• Общая площадь — 340,9 кв.м
• торговый зал — 144,9 кв.м
• вакантный блок — 40 кв.м
• подвал — 156 кв.м
• Высота потолков — 3,2 м
• Электрическая мощность — 70 кВт
Арендатор
Магазин
МАП
600 000Р.
ДДА на 5 лет
Коммунальные платежи оплачиваются отдельно
Индексация в размере 10%
Расторжение за 2 месяца с уведомления любой из сторон, но не ранее марта 2026

