Продажа готового бизнеса в ЖК Клубный город на реке Primavera, 56,1 м2
Цена:
60 000 000 ₽
Цена м2:
1 069 518 ₽
г Москва, Покровская наб, д 16
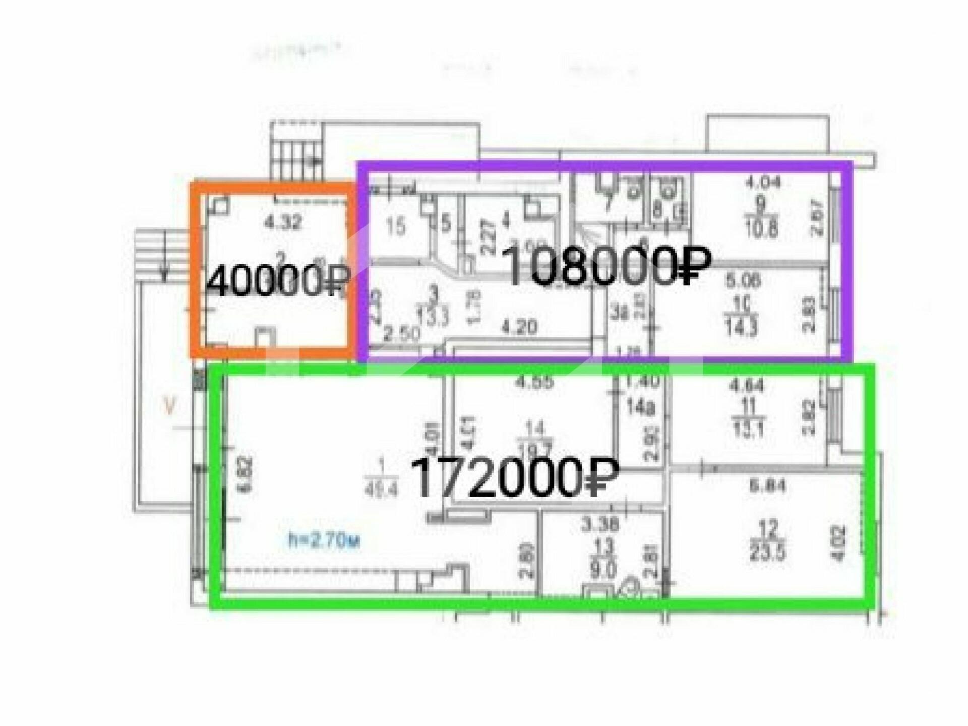
Помещение свободного назначения формата Street Retail на первой линии улицы Ивана Франко. 20 минут пешком от станций метро Молодёжная и МЦД-1 Сетунь, 11 минут пешком от МЦД-1 Рабочий посёлок. Плотный жилой массив. Сложившееся торговое и деловое окружение. Высокий автомобильный и пешеходный трафик. 1 этаж 12-этажного жилого дома. 3 отдельные входные группы. Смешанная планировка. Типовой ремонт. Зона разгрузки/погрузки. Наземная парковка. Электрическая мощность: 35 кВт. Высота потолков: 3.2 м. Арендаторы: пункт выдачи заказов Озон, серверная, склад натяжных потолков. Общий МАП: 332 500 руб. Окупаемость: 10 лет.

