Продажа здания на улице Большая Почтовая, 13 110 м2
Описание
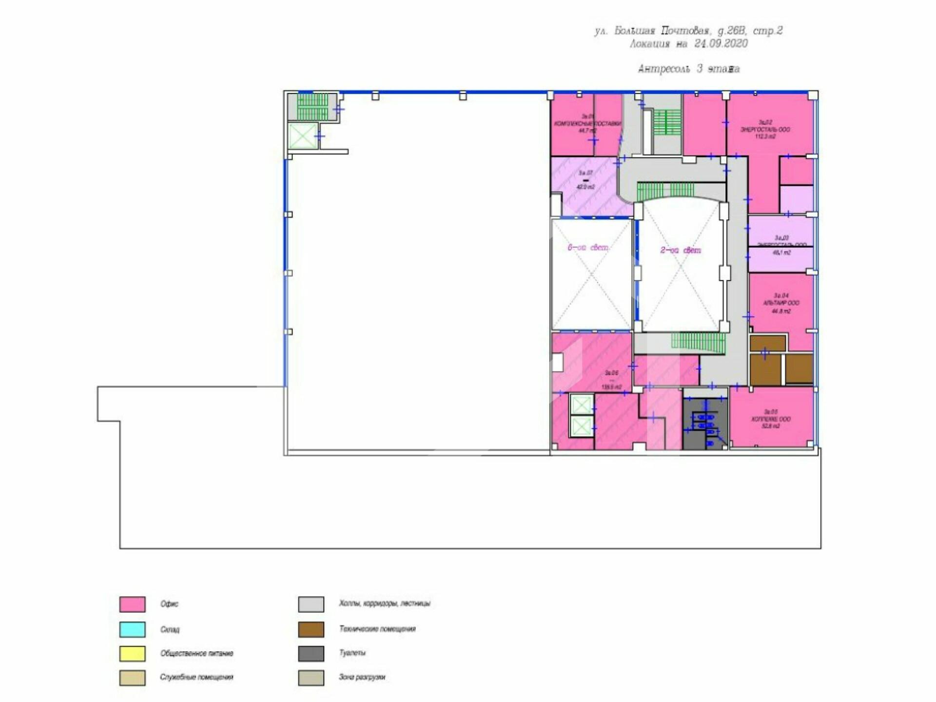
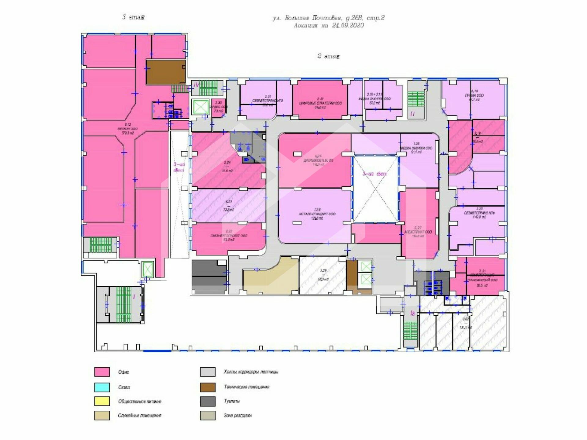
Характеристики объекта
Описание
Бизнес центр «ПостПлаза" располагается в качественно реконструированном шестиэтажном здании на Большой Почтовой улице общей площади 16 280 кв.м, в Басманном районе столицы. Продаваемая площадь 13 110 кв. м, есть сторонние собственники 3170 кв. м. Ремонт, с обновлением фасадов и техническим переоснащением, был произведен в 2007 году. Бизнес-центр «Пост Плаза» имеет развитую инфраструктуру: вентиляцию, интернет, кондиционирование, охраняемую парковку на 120 мест, современные лифты, телефония, кафе-бар, столовая, ресторан, типография, есть банкомат и платежные терминалы, а также 2 переговорные комнаты. В здании установлена централизованная система климат-контроля с индивидуальной регуляцией температурного режима в каждом кабинете. Интегрирован комплекс BMS (система управления зданием). Два независимых источника электроснабжения. Количество входов: 4, окна: витринные, высота потолков: 3 метра.
Расположение
Похожие объекты


























